Продажа помещения свободного назначения

80 000 000 ₽

331 401 ₽ за м²

241 м²
Площадь
1/8
Этаж

Поделиться

Добавить в избранное

Продажа ПСН 241, 4 м² у м. ВДНХ (СВАО) Расположение:
Москва, СВАО, р-н Останкинский, ул. Академика Королева, 3
1-й этаж 8-этажного жилого дома Транспорт:
ВДНХ 7 мин. пешком Описание помещения:
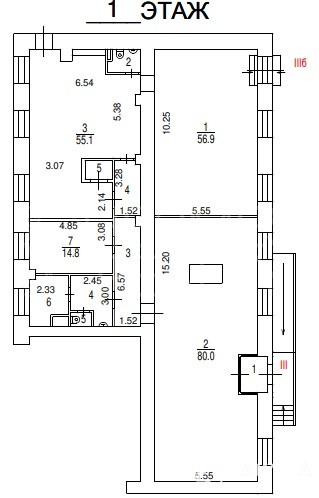
Площадь: 241, 4 м² с тремя входами (2 с улицы, 1 с торца)
Состояние: Помещение с отделкой, готова к использованию
Коммуникации: Центральные, мощность 50 кВт
Особенности: Возможность разделения на 2 независимых блока 120, 7 м² каждый Ключевые преимущества:
Готовая инфраструктура: Помещение полностью оборудовано, ранее использовалось аптекой Ригла (возможно освобождение с уведомлением за 1 месяц)
Высокая проходимость: 1-я линия дома в районе с плотной жилой застройкой
Развитая коммерческая среда: Рядом расположены магазины, салоны красоты, кофейня и пункт выдачи Wildberries
Удобная логистика: Парковка возле дома, близость к остановке общественного транспорта, выезд на ТТК и Садовое кольцо Условия аренды:
• Налогообложение: УСН
• Тип сделки: Продажа объекта недвижимости по ДКП Идеально для: аптек, магазинов розничной торговли, салонов услуг. Помещение с удачным расположением, готовой отделкой и высокой проходимостью. Звоните для организации просмотра и уточнения деталей! Объект №3100-979452.

Дата обновления: 30 сентября 2025