Продажа офисного помещения
Москва, ВАО, р-н Соколиная Гора, ул Вольная, д35с4
47 991 000 ₽
170 181 ₽ за м²
- 282 м²
- Площадь
- 2/4
- Этаж
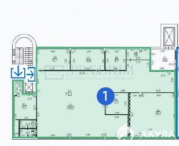
Уважаемый Покупатель, предлагаем Вам приобрести офис 282.3 м² на 2 этаже в собственность на выгодных условиях.
Планировка - смешанная. Приточно-вытяжная вентиляция. Электрическая мощность: 250кВт. Интернет, телефония. Отдельный вход.
ВАО Москвы. В 15 минутах от м. Соколиная Гора
Быстро реагируем на обращения, организуем встречу на объекте в удобное для Вас время, направим план помещения и ответим на все возникшие вопросы!
Звоните сейчас и получите лучшие условия на рынке!
ID: o97992
Дата обновления: 10 февраля 2026