Продажа офисного помещения
Москва, ЦАО, р-н Басманный, ул Казакова, д3с2
435 000 000 ₽
885 948 ₽ за м²
- 491 м²
- Площадь
- 4
- Этажность
Уважаемый Покупатель, предлагаем Вам приобрести 491.0 м² в собственность на выгодных условиях.
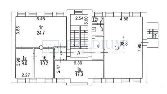
Планировка - смешанная. Приточно-вытяжная вентиляция. Интернет, телефония. Охрана. Видеонаблюдение. Система контроля доступа. Наземная парковка.
ЦАО Москвы. В 7 минутах от м. Курская, Чкаловская
Быстро реагируем на обращения, организуем встречу на объекте в удобное для Вас время, направим план помещения и ответим на все возникшие вопросы!
Звоните сейчас и получите лучшие условия на рынке!
ID: o92206
Дата обновления: 10 февраля 2026