Продажа офисного помещения

г Москва, ул Академика Семенихина, влд 2

91 052 382 ₽

429 493 ₽ за м²

212 м²
Площадь
13/23
Этаж

Поделиться

Добавить в избранное

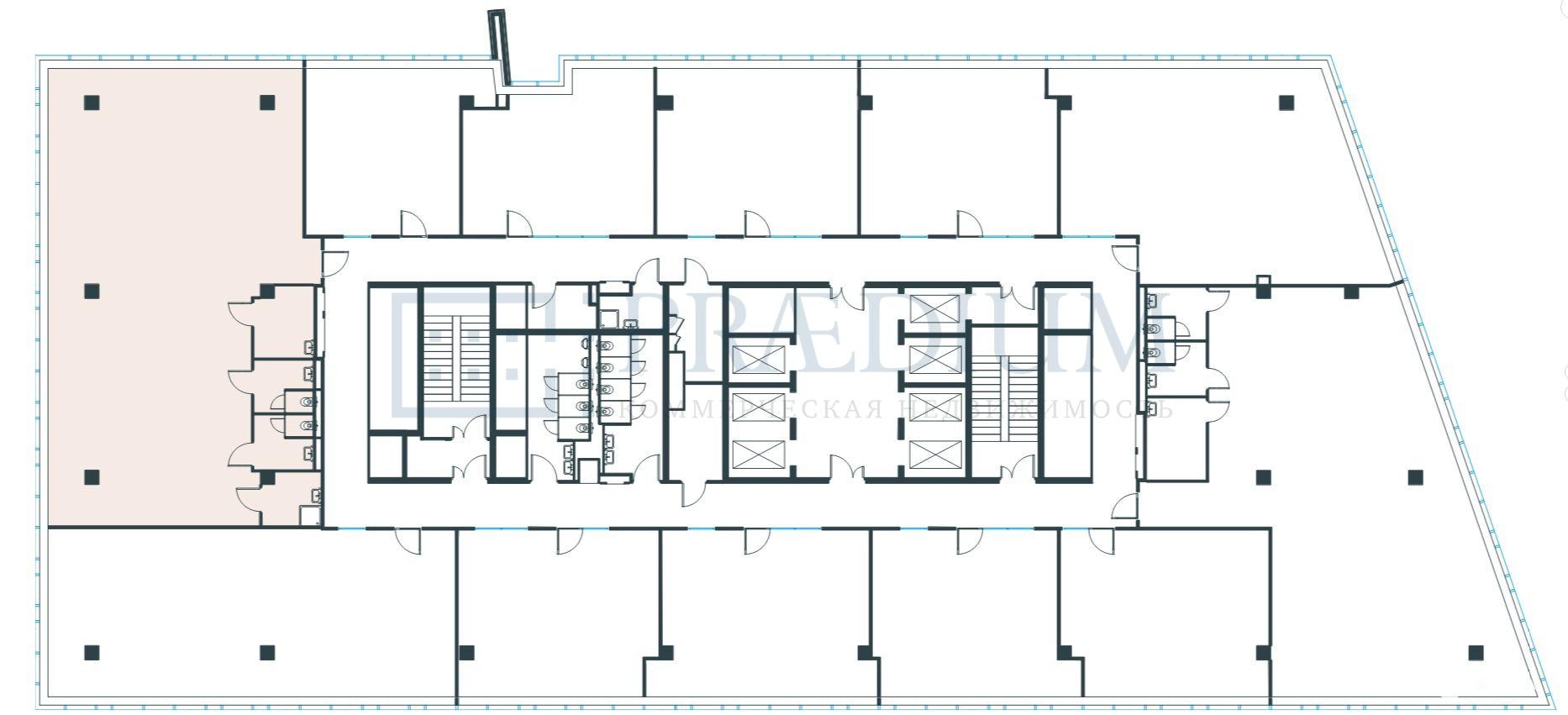
Уважаемый Покупатель, предлагаем Вам приобрести в БЦ "Level Work Воронцовская" офис 211.7 м² на 13 этаже в собственность на выгодных условиях.

Приточно-вытяжная вентиляция. Центральное кондиционирование. Пожарная сигнализация. Интернет, телефония. Охрана. Видеонаблюдение. Система контроля доступа. Лифты: 6 высокоскоростных лифтов. Подземная парковка.

ЮЗАО Москвы. В 3 минутах от м. Воронцовская ТПК, Калужская

Быстро реагируем на обращения, организуем встречу на объекте в удобное для Вас время, направим план помещения и ответим на все возникшие вопросы!
Звоните сейчас и получите лучшие условия на рынке!
ID: o100594

Дата обновления: 25 апреля 2026