309 653 190 ₽

417 886 ₽ за м²

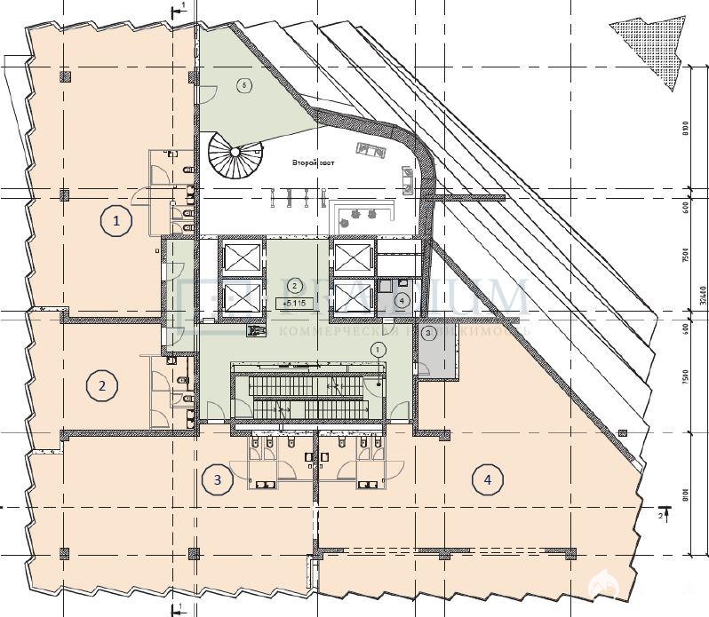
741 м²
Площадь
2/11
Этаж

Поделиться

Добавить в избранное

Уважаемый Покупатель, предлагаем Вам приобрести в БЦ "EDEL" офис 740.5 м² на 2 этаже в собственность на выгодных условиях.

Приточно-вытяжная вентиляция. Центральное кондиционирование. Пожарная сигнализация. Электрическая мощность: 170. Интернет, телефония. Охрана. Видеонаблюдение. Система контроля доступа. Лифты: 4 шт.. Подземная парковка.

СВАО Москвы. В 7 минутах от м. Бутырская, Марьина Роща, Алексеевская

Быстро реагируем на обращения, организуем встречу на объекте в удобное для Вас время, направим план помещения и ответим на все возникшие вопросы!
Звоните сейчас и получите лучшие условия на рынке!
ID: o100036

Дата обновления: 27 марта 2026