Аренда торговой площади
Москва, ЦАО, р-н Басманный, ул Бауманская, 33/2с3
300 000 ₽/мес
189 474 ₽ за м²/год
- 19 м²
- Площадь
- 1/3
- Этаж
Аренда торгового помещения
На выходе из метро, станция Бауманская
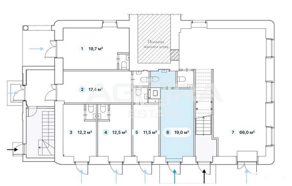
Площадь - 19 м2. Полностью на 1-м этаже (на плане - блок 6). Отдельный вход с улицы. Планировка - открытая (сетка колонн). Состояние - под чистовую отделку. Все городские коммуникации. Место для размещения вывески на фасаде.
Помещение имеет отличную визуализацию и высокий торговый потенциал.
Район с высокой деловой активностью, плотный пешеходный трафик к метро.Объект № 551521Номер объекта: #5/551521/310
Дата обновления: 12 февраля 2026