Аренда помещения свободного назначения
Москва, ЦАО, р-н Арбат, ул Воздвиженка, 4/7с2
750 960 ₽/мес
71 520 ₽ за м²/год
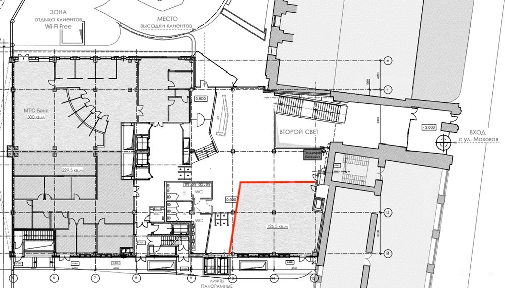
- 126 м²
- Площадь
- 1/8
- Этаж
Аренда ПСН 126 м2, метро Библиотека им. Ленина, Арбатская (ЦАО) Расположение:
Москва, ЦАО, р-н Арбат, ул. Воздвиженка, 4/7С2
Помещение в многоэтажном бизнес-центре класса А Деловой Дом Моховая Транспорт:
Библиотека им. Ленина 2 мин. пешком
Александровский сад 4 мин. пешком
Боровицкая 6 мин. пешком
Охотный ряд 7 мин. пешком Описание помещения:
Площадь: 126 м²
Состояние: Качественный ремонт, готово к въезду
Коммуникации:
Центральное кондиционирование и приточно-вытяжная вентиляция
Противопожарная сигнализация
20 грузопассажирских лифтов Инфраструктура:
Подземная и наземная парковка (250+ м/м)
Круглосуточная охрана, видеонаблюдение, контроль доступа
Рецепция, круглосуточный доступ 24/7
Рестораны, кафе, кофейни (Starbucks), фитнес-студия, студия красоты, банкоматы
Уютный двор с зоной Wi-Fi Ключевые преимущества:
Исключительная локация в самом центре Москвы
Премиальный бизнес-центр класса А с полным набором услуг
Назначение: кафе/кофейня Условия аренды:
• Налогообложение: с НДС
• ОПЕКС: включены
• Тип сделки: Прямая аренда Помещение премиум-класса в одном из самых статусных бизнес-центров с безупречной репутацией. Уникальное предложение для брендов, для которых важны престиж локации, высочайший уровень сервиса и мгновенная узнаваемость. Звоните для организации просмотра и уточнения деталей! Объект №3100-981707.
Дата обновления: 14 ноября 2025