Аренда помещения свободного назначения

270 000 ₽/мес

44 752 ₽ за м²/год

72 м²
Площадь
90 м²
Жилая площадь
1/9
Этаж

Поделиться

Добавить в избранное

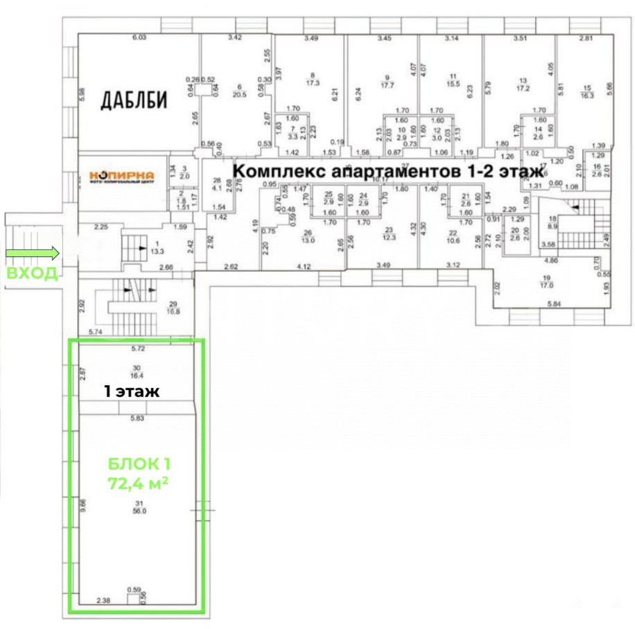
Вашему внимание ПСН 72.4 м² на Волоколамском Шоссе!

Характеристики объекта:

▪ Этажность – Второй этаж
▪ Общая площадь - 72.4 м².
▪ Высота потолка - 3 м.
▪ Вход с общий с угла дома.

Коммуникации:

▪ Электрическая мощность – 25 Кв/ч.
▪ Канализация, система вентиляции.
▪ Состояние объекта – Косметический ремонт
▪ Коммунальные платежи не включены в стоимость
▪ Налогообложение – УСН

Оперативный показ! Все готово к заключению договора аренды! Звоните!
Арт. 126483639

Дата обновления: 12 января 2026