Аренда помещения свободного назначения

Москва, ул Юных Ленинцев, 71, корпус 1

Кузьминки, 4 мин

Волжская, 14 мин

Люблино, 18 мин

700 000 ₽/мес

27 751 ₽ за м²/год

303 м²
Площадь
2/2
Этаж

Поделиться

Добавить в избранное

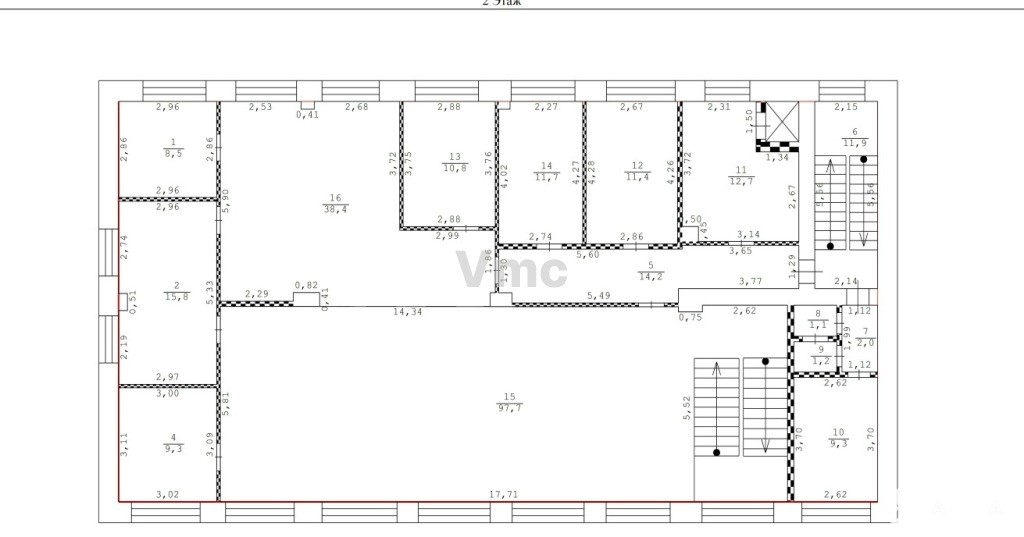
Арт. 92029054. Помещение 302.7м 2й этаж в отдельностоящем здании, Отдельный вход с первого этажа. ( три входа с улицы, со двора и торца здания.) . Высокий трафик, Идеальный дизайнерский ремонт ресторана ( можно мебель и технику оставить) . Высокие потолки 3.6м Много окон 18шт. Готовое решение. Ресторан, общепит. Дизайнерский ремонт. Абсолютно вся техника и мебель. Интерьер Заведения выполнен в традиционном восточном стиле, создающим уют и располагающую к отдыху атмосферу. Открытая кухня позволяет гостям наблюдать за искусством приготовления блюд настоящими мастерами. только Общепит. Ресторанный бизнес. Прекрасный ресторан.

Просторный зал. Кухня укомплектована современным профессиональным оборудованием. Мощная приточно-вытяжная система, кондиционирование. Все оборудование и мебель в идеальном состоянии.

Общепит, кафе, ресторан. мощность 150 кВт. Долгосрочный договор.

Дата обновления: 16 апреля 2026