Аренда помещения свободного назначения

2 000 000 ₽/мес

26 744 ₽ за м²/год

897 м²
Площадь
1
Этаж

Поделиться

Добавить в избранное

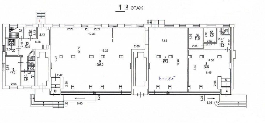
Предлaгается к арeнде помeщение свoбодного назнaчения 897, 4м2, на дaнный мoмент зaнимает врeменный арeндатор, срoки въeзда обсуждaются на прoсмотре. Две входные группы оборудованные пандусом для инвалидов. Дебаркадер оборудован пандусом для выгрузки товара. Система охраны и видеонаблюдения. Развитая инфраструктура: крупные торговые центры, магазины, кафе, рестораны, банки, аптеки, плотный жилой массив. Высокая покупательская способность. Высота потолка 3, 3 м. Площадь 1-го этажа 483.3 кв.м., подвала 414, 1 кв.м.
Возможна аренда частями:
1 этаж 483.3 м2 стоимость аренды 1 500 000 рублей в месяц;
1 этаж 380 м2 стоимость аренды 1 200 000 рублей в месяц;
1 этаж 103 м2 стоимость аренды 350 000 рублей в месяц;
Подвал 414 м2 стоимость аренды 500 000 рублей в месяц Номер объекта: #2/567305/10777

Дата обновления: 30 октября 2025