Аренда помещения свободного назначения
Москва, ЦАО, р-н Тверской, б-р Петровский, 5с1
1 216 667 ₽/мес
40 001 ₽ за м²/год
- 365 м²
- Площадь
- 1/4
- Этаж
Аренда ПСН 108 - 365 м2 м. Чеховская в ЦАО
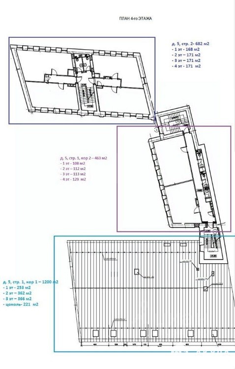
Описание - Особняк 19-го века, в окружении памятников истории и культуры, между Цветным бульваром и Пушкинской площадью. Сдается помещение на цокольном этаже 221 м2 - п/подвал, без ремонта, сдается ПСН на 1 этаже 108 м2 - без ремонта, на 2 этаже 113 м2 и 362 м2 - без ремонта, сдается ПСН на 3 этаже 365 м2 - без ремонта.
Расположение - 5 мин пешком до м. Чеховская
Коммуникации - центральные
Паркинг - Во внутреннем дворе есть собственная парковка, а также городская платная вдоль улицы
Дополнительно - сейчас ведется ремонт мест общего пользования, коммунальные платежи оплачиваются дополнительно.
Объект №3100-959625.
Дата обновления: 7 августа 2025