Аренда помещения свободного назначения
Москва, ЮАО, р-н Нагатино-Садовники, ул Нагатинская, 16к1с5
654 000 ₽/мес
15 009 ₽ за м²/год
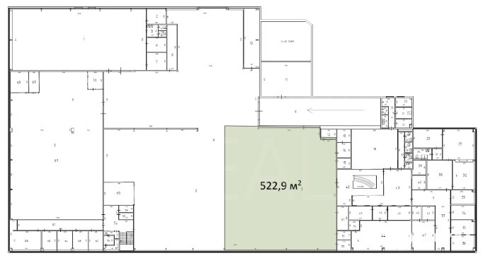
- 523 м²
- Площадь
- 2/2
- Этаж
Аренда ПСН 522, 9 м2 м. Коломенская в ЮАО
Расположение: Первая линия Нагатинской улицы сердце автомобильного трафика!
5 минут до метро Нагатинская, Коломенская, быстрый выезд к м. Тульская и ТТК, Варшавскому и Каширскому шоссе
Описание: Сдается в аренду просторный склад со свободной планировкой от собственника. Площадь: 522, 9 м² Этаж: 2-й, возможен въезд транспорта через пандус Потолки 4 м - комфорт для размещения крупного оборудования или авто Качественный ремонт: пол - керамогранит, потолки - армстронг Парковка рядом, на огороженной территории, стоимость машиноместа - 10 000 /мес. (количество обсуждается) Возможность размещения вывески Предоставляется юридический адрес Территория охраняемая, с удобным подъездом Идеально под: Шоурум Склад или производственную базу Онлайн-магазин с пунктом выдачи Помещение свободного назначения под ваш бизнес Производство Преимущества локации: Первая линия Нагатинской улицы - высокая видимость и стабильный автомобильный трафик Район активно застраивается новыми жилыми кварталами, что обеспечивает постоянный поток клиентов Удобная транспортная доступность: выезд на ТТК, Варшавское и Каширское шоссе Вблизи станции метро: Нагатинская, Тульская, Коломенская Развитая инфраструктура, насыщенный деловой и жилой район Коммуникации: все центральные.
Паркинг: наземная парковка (стоимость м/м - 10, 000 руб. в мес.). Отдельная зона для погрузки/разгрузки. Звоните - ответим на все вопросы и организуем показ. Объект №3100-985258.
Дата обновления: 14 февраля 2026