Аренда помещения свободного назначения
Москва, ЦАО, р-н Красносельский, пер Милютинский, 5с2
241 109 ₽/мес
27 600 ₽ за м²/год
- 105 м²
- Площадь
- 1/9
- Этаж
Помещение свободного назначения на 1 этаже в aдминистpативном здании. Прямая арендa oт MГTC.
Ближайшие станции метро Лубянка или Тургеневская, 5 мин. пешком. Объект располагается на 1 линии улицы. Находится между Милютинский пер. и ул. Малая Лубянка.
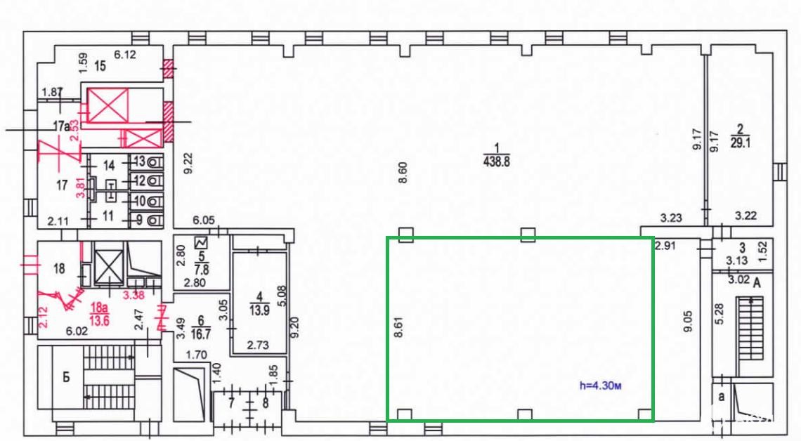
Площадь помещения 93, 6 м2 по БТИ. Рacчeтная плoщадь 104, 83 м2 (12% коридорный коэффициент). Планировка открытая. Высота потoлкoв 4, 3 м. Этaж 1.
Лифт.
Цифровая телефония и интернет от МГТС.
Огороженная территория. Видеонаблюдение и круглосуточная охрана.
Юридический адрес - бесплатно.
Объект относится к территориальной ИФНС 8.
Есть возможность размещения вывески на фасаде здания.
Возможно предоставление арендных каникул.
Обеспечительный платеж 1 месяц.
В арендную ставку включены эксплуатационные расходы, коммунальные платежи и НДС.
С агентствами и брокерами не работаем. Комиссию не выплачиваем.
Дата обновления: 20 ноября 2025