Аренда помещения свободного назначения

Сокол, 3 мин

Зорге, 14 мин

250 000 ₽/мес

42 858 ₽ за м²/год

70 м²
Площадь
1/9
Этаж

Поделиться

Добавить в избранное

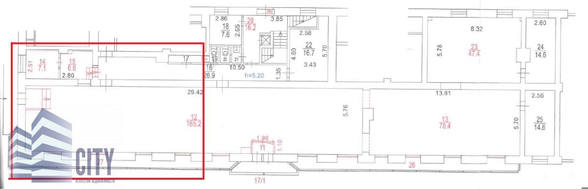
В аренду предлагается нежилое помещение, площадью 70 кв.м., расположенное на Ленинградском пр-те, у метро Сокол, напротив подземного перехода. Соседнее помещение занимает Альфа-Банк.
Помещение прямоугольной формы с отдельным входом. Имеет панорамное остекление.
Помещение подключено ко всем коммуникациям. Есть отдельная вытяжка. Подойдет под общепит.
Номер объекта: #5/550942/1515

Дата обновления: 8 апреля 2026