Аренда помещения свободного назначения
751 500 ₽/мес
20 040 ₽ за м²/год
- 450 м²
- Площадь
- 1
- Этаж
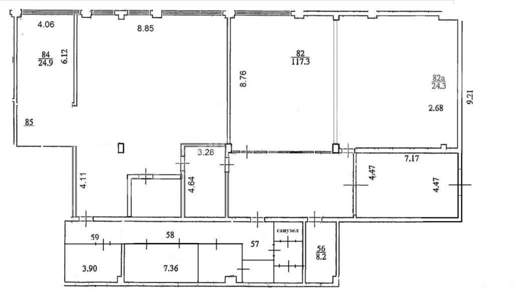
Лот №1026189 Предложение от Собственника! Предлагается в аренду помещение свободного назначения, площадью 450 кв. м.
Помещение расположено на 1 этаже удобный подъезд; автоматические ворота высотой 2, 9 м.
Нагрузка 400 кг на м2, высота потолков 3 м, пол плитка. Большие окна, хорошее освещение.
Приточно-вытяжная система вентиляции, Спринклерная система пожаротушения, Центральное отопление, Горячее и холодное водоснабжение. Свой санузел в блоке, душевая.
Электрическая мощность 100 кВт.
Контрольно-пропускной режим, круглосуточная охрана, видеонаблюдение, служба безопасности.
5 минут пешком от метро Преображенская площадь, близость ТТК.
Возможность работы 24/7.
Удобство размещения автомобилей на территории БЦ. (теплый и холодный паркинг, гостевой паркинг, возможность заезда фур).
На территории имеются столовая, буфет, спортивные клубы, автосервисы.
Круглосуточный доступ. Бесплатная гостевая парковка.
Возможное назначение: производство (не пищевое), сервисный центр, шоу-рум, склад (не продукты питания), автосервис.
Стоимость аренды: 20040 руб/м2/год (751500 руб в месяц) В цену не включено: затраты на электричество, коммунальные расходы, уборка, эксплуатационные расходы.
Чтобы получить ПОДРОБНУЮ ПРЕЗЕНТАЦИЮ С ПЛАНИРОВКОЙ И ФОТОГРАФИЯМИ, звоните или отправьте свой email в сообщении на портале. Высылаем в течение 15 минут по запросу!
☎ Конт. лицо: Валентин , доб. 215, ЛОТ №1026189
Дата обновления: 5 февраля 2026