Аренда помещения свободного назначения
Москва, ЮАО, р-н Даниловский, ул Дербеневская, 24с3
1 244 400 ₽/мес
21 960 ₽ за м²/год
- 680 м²
- Площадь
- 3/10
- Этаж
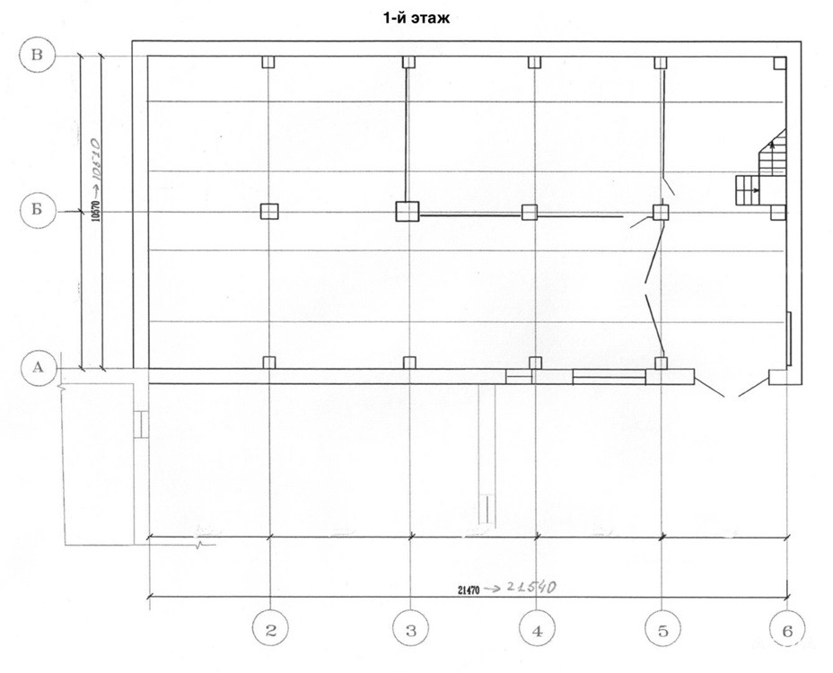
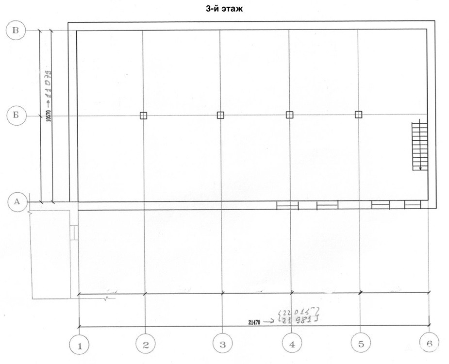
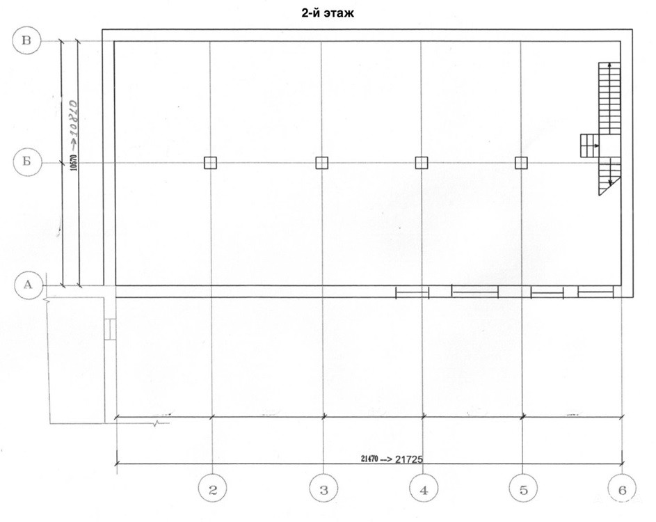
Аренда помещения свободного назначения 680 м² на Дербеневской, 24с3 Сдаётся в аренду трёхуровневое помещение общей площадью 680 м² по адресу: ул. Дербеневская, д. 24с3. Планировка и возможности: 1 этаж: 220 м² 2 этаж: 230 м² 3 этаж: 230 м²
Идеально подходит для офисов, шоу-румов, производства легких классов, студий, учебных центров. Ключевое преимущество:
В помещении уже проводится ремонт . Это ваш шанс арендовать объект с чистовой отделкой под ключ, сэкономив время и ресурсы на подготовке. Финансовые условия: Годовая арендная ставка: 21 960 руб. с учетом НДС (20%). Локация:
Удобная транспортная доступность в районе Дербеневской набережной. Объект №3100-983765.
Дата обновления: 13 января 2026