Аренда помещения свободного назначения

Аэропорт, 7 мин

Сокол, 11 мин

Зорге, 24 мин

1 166 500 ₽/мес

27 996 ₽ за м²/год

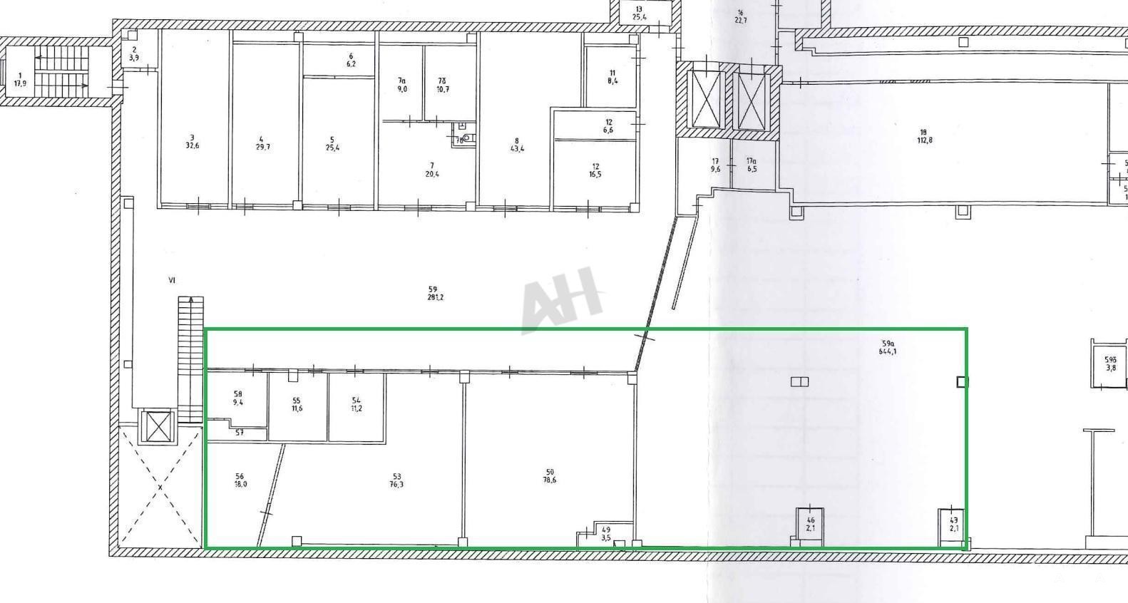
500 м²
Площадь
2
Этаж

Поделиться

Добавить в избранное

Лот №985768 Предложение от Собственника! Сдается в торговом центре в густонаселенном районе в проходном месте со своей парковкой и возможностью подъезда грузовых автомобилей. Первый этаж занимают магазины одежды и сетевое кафе Проходное проездное место, центральные коммуникации, высокие потолки, лифт, высокий рекламный потенциал, 600кВт, система кондиционирования и вентиляции, центральные коммуникации.
Идеально для организации фитнеса, компьютерного центра, кибрер клуба, выставок, конференций, торгового центра, строймаркета, фудхолла, ресторана, строймаркета, субарендного бизнеса, товаров для дома.


Стоимость аренды: 28000 руб/м2/год УСН. В цену включено: эксплуатационные расходы. В цену не включено: затраты на электричество, коммунальные расходы, уборка.

Чтобы получить ПОДРОБНУЮ ПРЕЗЕНТАЦИЮ С ПЛАНИРОВКОЙ И ФОТОГРАФИЯМИ, звоните или отправьте свой email в сообщении на портале. Высылаем в течение 15 минут по запросу!

☎ Конт. лицо: Эльдар Гатуфович, доб. 219, ЛОТ №985768

Дата обновления: 27 ноября 2025