Аренда помещения свободного назначения
Москва, ЦАО, р-н Басманный, ул Бауманская, 33/2с3
330 000 ₽/мес
257 143 ₽ за м²/год
- 15 м²
- Площадь
- 1/10
- Этаж
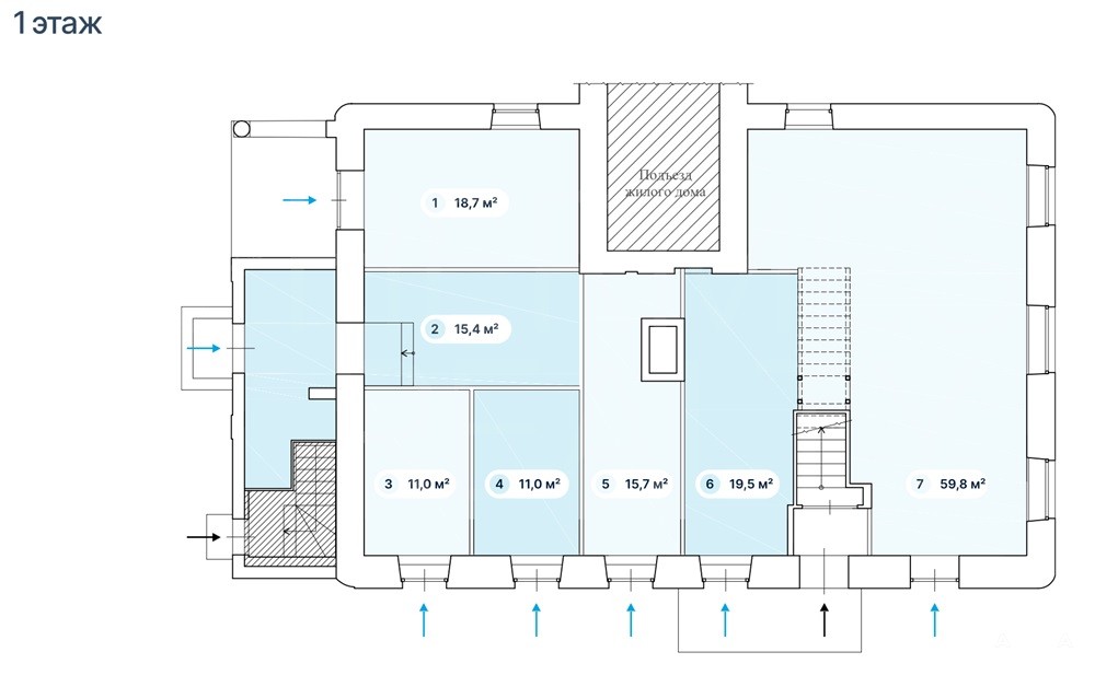
Аренда ПСН 15, 4 м2 м. Бауманская в ЦАО
Расположение:
Москва, ЦАО, р-н Басманный, ул. Бауманская, 33/2, строение 3
Помещения на первом этаже жилого/многоквартирного дома. Транспорт:
Бауманская 1 мин. пешком
Красносельская 15 мин. пешком
Комсомольская 17 мин. пешком Описание помещения:
Площадь: 15, 4 м²
Состояние: Под чистовую отделку (свободное планирование под задачи арендатора)
Коммуникации:
Высота потолков: 3, 2 м Инфраструктура района:
Магазины, кофейни, образовательные учреждения
Библиотека им. Н.А. Некрасова, театр Модерн , музеи
Развитая инфраструктура плотного жилого района Ключевые преимущества:
Идеальная локация менее 1 минуты от выхода из метро Бауманская , отдельные входные группы с фасада в каждый блок.
Высокий трафик интенсивные пешеходные и автомобильные потоки.
Отличный рекламный потенциал отличная видимость и возможности для размещения вывесок. Условия аренды:
• Тип сделки: Прямая аренда
• Срок аренды: Длительный
• Предоплата: 1 месяц
• Коммунальные платежи: Коммунальные платежи и электричество оплачиваются арендатором отдельно. Финал-резюме: Идеальное предложение для запуска или расширения бизнеса, ориентированного на живую аудиторию. Помещения обладают максимальным рекламным эффектом и проходимостью. Подходит для розничной торговли, аптеки, салона красоты, медицинского или офисного центра. Звоните для организации просмотра и уточнения деталей!
Объект №3100-984366.
Дата обновления: 28 января 2026