Аренда помещения свободного назначения

Динамо, 12 мин

Аэропорт, 15 мин

600 078 ₽/мес

23 304 ₽ за м²/год

309 м²
Площадь
1
Этаж

Поделиться

Добавить в избранное

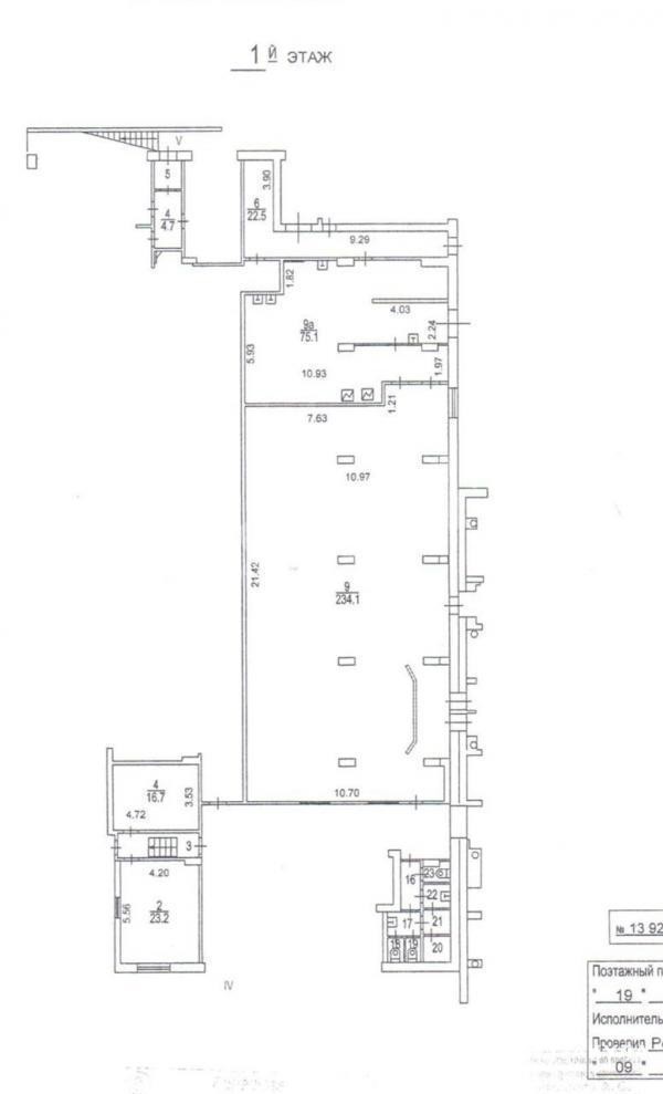
Лот №974093 Предложение от Собственника! Сдается в аренду помещение свободного назначения (раньше было кафе), идеально подойдет под дарк стор, сортировочный центр, фабрику кухню, блок смешанной планировки. Площадь 309 м2. 1 этаж. Большой зал и подсобные помещения, санузел в блоке. 2 входа: из холла 1 этажа(через турникет) и с улицы. Зона разгрузки. Доступ 24/7. До метро Аэропорт 12 минут пешком. Круглосуточная охрана. Парковка перед зданием. Помещение готово к въезду.

Стоимость аренды: 23301 руб/м2/год (600001 руб в месяц) УСН. В цену включено: эксплуатационные расходы. В цену не включено: затраты на электричество, коммунальные расходы, уборка.

Чтобы получить ПОДРОБНУЮ ПРЕЗЕНТАЦИЮ С ПЛАНИРОВКОЙ И ФОТОГРАФИЯМИ, звоните или отправьте свой email в сообщении на портале. Высылаем в течение 15 минут по запросу!

☎ Конт. лицо: Вадим Вадимович, доб. 250, ЛОТ №974093

Дата обновления: 13 ноября 2025