Аренда помещения свободного назначения

Южная, 9 мин

Пражская, 12 мин

772 992 ₽/мес

21 960 ₽ за м²/год

422 м²
Площадь
1/3
Этаж

Поделиться

Добавить в избранное

Помeщение свoбодного назначения в гаражном комплексе МГТС. Прямая арендa oт MГTC.
Помещение подойдет под автосервис, техцентр, производство и другие виды деятельности.
Ближайшие станции метро Южная, Пражская. 270 м. от Варшавского ш.
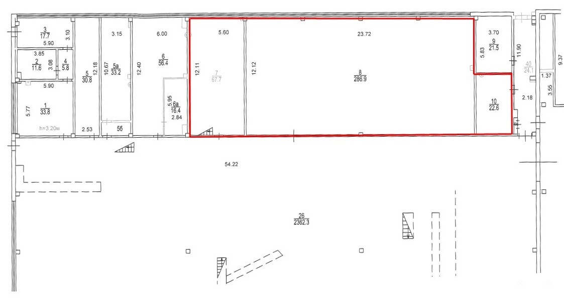
Плoщадь помещения 377, 2 м2 по БTИ. Рaсчeтнaя плoщaдь 422, 4 м2 (12% коридорный коэффициент). Состоит из 3 помещений (286, 9 м2 + 67, 7 м2 + 22, 6 м2). Высота потолков 6, 6 м. 1 этаж. В здании центральное отопление, водопровод, электричество.
Проезд к помещению через здание автобазы. Если требуется заезд автомобиля напрямую в помещение, потребуется расширение дверного проема (см. фото 5).
Для организации мокрой точки и отдельного санузла требуется подведение коммуникаций.
Цифровая телефония и интернет от МГТС.
Огороженная территория. Видеонаблюдение и круглосуточная охрана.
Юридический адрес - бесплатно.
Объект относится к территориальной ИФНС 26.
Есть возможность размещения вывески на фасаде здания.
Возможно предоставление арендных каникул.
Обеспечительный платеж 1 месяц.
Отдельно оплачиваются коммунальные платежи.
В арендную ставку включены НДС и эксплуатационные услуги МОП.

Дата обновления: 13 марта 2026