Аренда офисного помещения

291 250 ₽/мес

22 333 ₽ за м²/год

157 м²
Площадь
2/5
Этаж

Поделиться

Добавить в избранное

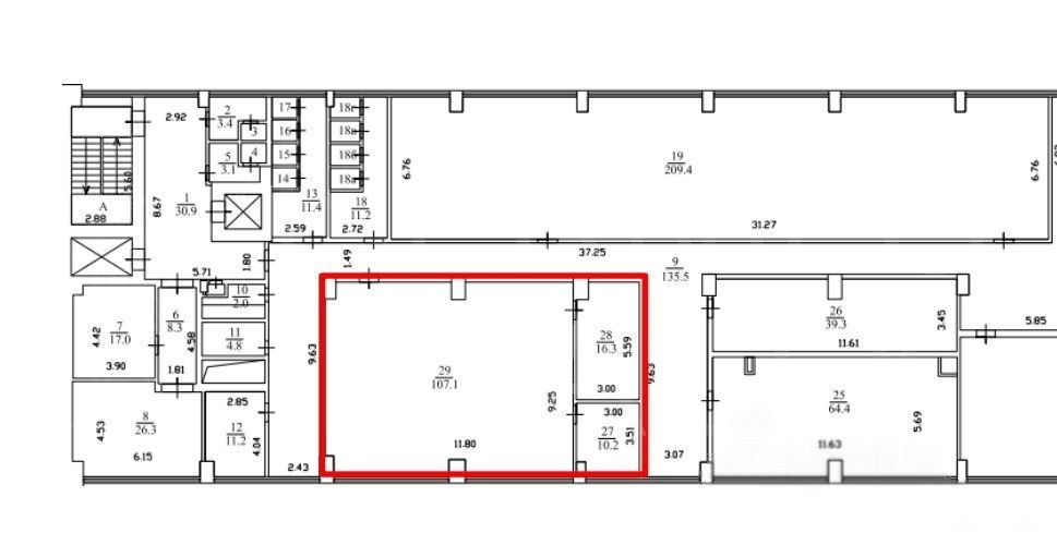
Предлагается в аренду офисное помещение 156, 5 м2, расположенное на 2-ом этаже бизнес-центра.
В 10-ти минуах пешком от метро Смоленская.
Первая линия домов.
Смешанная планиpовкa. Офисный ремонт. Возможна перепланировка, организация и оформление пространства под задачи вашего бизнеса.
Все коммуникации центральные. Приточно-вытяжная вентиляция, кондиционирование. Интернет.
Коммунальные услуги оплачиваются дополнительно.
Прямая аренда.
Объект №3100-982241.

Дата обновления: 25 ноября 2025