Аренда офисного помещения

Спартак, 11 мин

Тушинская, 11 мин

Щукинская, 15 мин

77 300 ₽/мес

15 059 ₽ за м²/год

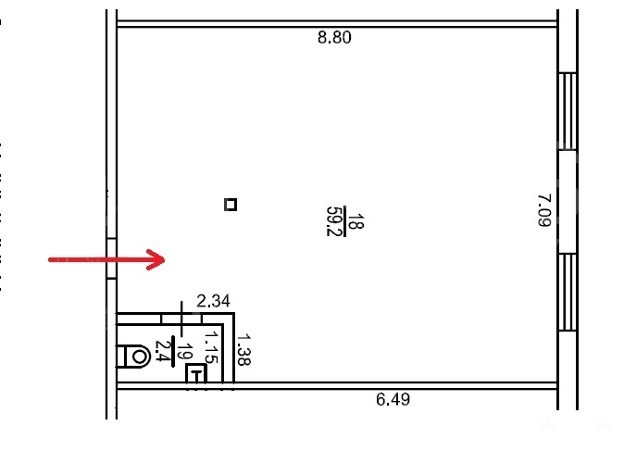
62 м²
Площадь
4/4
Этаж

Поделиться

Добавить в избранное

ОФИС 61, 6 М² В БИЗНЕС-ПАРКЕ ВОДНИКИ КАБИНЕТНОЕ РЕШЕНИЕ ДЛЯ КОМФОРТНОЙ РАБОТЫ! Собственная территория и развитая инфраструктура все для продуктивной работы вашей команды в уединенном деловом кластере! КЛЮЧЕВЫЕ ХАРАКТЕРИСТИКИ Площадь/Планировка: Офис 61, 6 м² на 4-м этаже Локация: 12 минут пешком от метро Спартак Доступность на общественном транспорте от метро Сходненская и Сокол Пеший вход свободный с 7:00 до 23:00 Инфраструктура:
Коммуникации Электрическая мощность 10 кВт Безопасность Контролируемый въезд автомобильного транспорта по пропускам ПОЧЕМУ ЭТО ВЫГОДНО? Комплексная инфраструктура: Все необходимое для работы и отдыха сотрудников в шаговой доступности
Гибкие планировочные решения: Возможность адаптировать пространство под специфику вашего бизнеса
Безопасная территория: Контролируемый доступ и уединенное расположение делового кластера
Оптимальная логистика: Удобная транспортная доступность и свободный пеший вход в дневное время ВАШ БИЗНЕС В ЭПИЦЕНТРЕ
Для представительских целей: Используйте как переговорную зону или коворкинг для проектной работы
Для сервисных компаний: Организуйте клиентский офис в комплексе с развитой деловой инфраструктурой Получите план помещения и детальные условия аренды предоставим в течение 15 минут! Напишите для организации просмотра покажем территорию бизнес-парка и офисное пространство #АрендаОфиса #БизнесПарк #Водники #МетроСпартак #Офис47м #КабинетныйОфис #БизнесКластер #МалыйБизнес аренда офиса в бизнес-парке Водники, кабинетный офис у метро Спартак Создайте идеальные условия для работы вашей команды в сбалансированной деловой среде! Объект №3100-982252.

Дата обновления: 24 ноября 2025