Аренда офисного помещения
Москва, САО, р-н Савеловский, ул Юннатов, 18
85 000 ₽/мес
20 079 ₽ за м²/год
- 51 м²
- Площадь
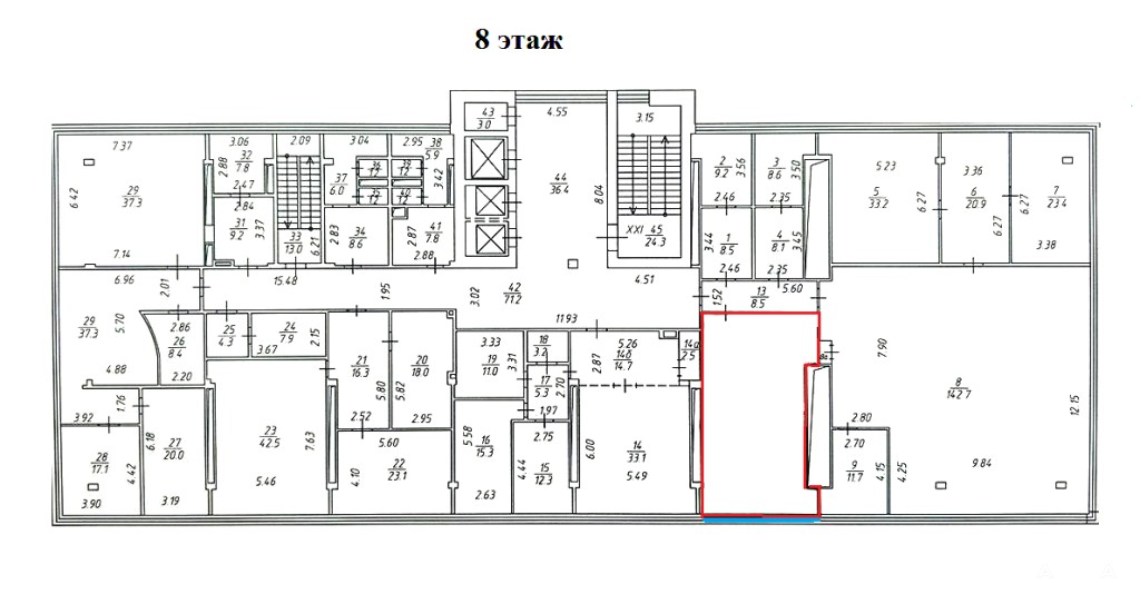
- 8/9
- Этаж
Арт. 89354182. БЕЗ КОМИССИИ! М. Динамо, Петровский парк, Аэропорт
Аренда офисного блока 8 этаж - 50.8 кв.м. (одна комната)
Арендная ставка включает НДС, коммунальные и эксплуатационные платежи.
Юр. адрес ИФНС 13. Арендная ставка вкл. включает НДС.
Потолки 3, 2м.
Охрана, пропускная система, видеонаблюдение.
Оплата пользования телефонами, Интернетом по факту потребления.
Интернет провайдеры: Тел, Комстар, Билайн, МТС, Цифра 1.
График работы 24/7.
Есть парковка 10 000 руб. в мес.
На территории действует кафе.
Евгений Р
Дата обновления: 11 ноября 2025