Аренда офисного помещения
Москва, САО, р-н Савеловский, ул Вятская, д27с19
11 603 827 ₽/мес
53 681 ₽ за м²/год
- 2 594 м²
- Площадь
- 4
- Этажность
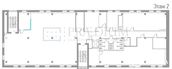
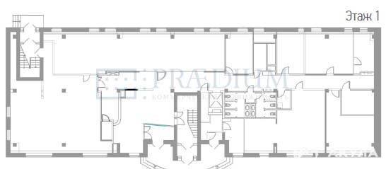
Уважаемый Арендатор, предлагаем Вам арендовать БЦ "Фактория" 2594.0 м² на выгодных условиях.
Планировка - смешанная. Приточно-вытяжная вентиляция. Центральное кондиционирование. Пожарная сигнализация. Электрическая мощность: 70Вт/м². Интернет, телефония. Охрана. Видеонаблюдение. Система контроля доступа. Лифты: OTIS. Подземная парковка. Наземная парковка.
САО Москвы. В 7 минутах от м. Савеловская
Быстро реагируем на обращения, организуем встречу на объекте в удобное для Вас время, направим план помещения и ответим на все возникшие вопросы!
Звоните сейчас и получите лучшие условия на рынке!
ID: o100517
Дата обновления: 23 апреля 2026