Аренда офисного помещения
Москва, ВАО, р-н Соколиная Гора, ул Кирпичная, д21к4
243 939 ₽/мес
22 010 ₽ за м²/год
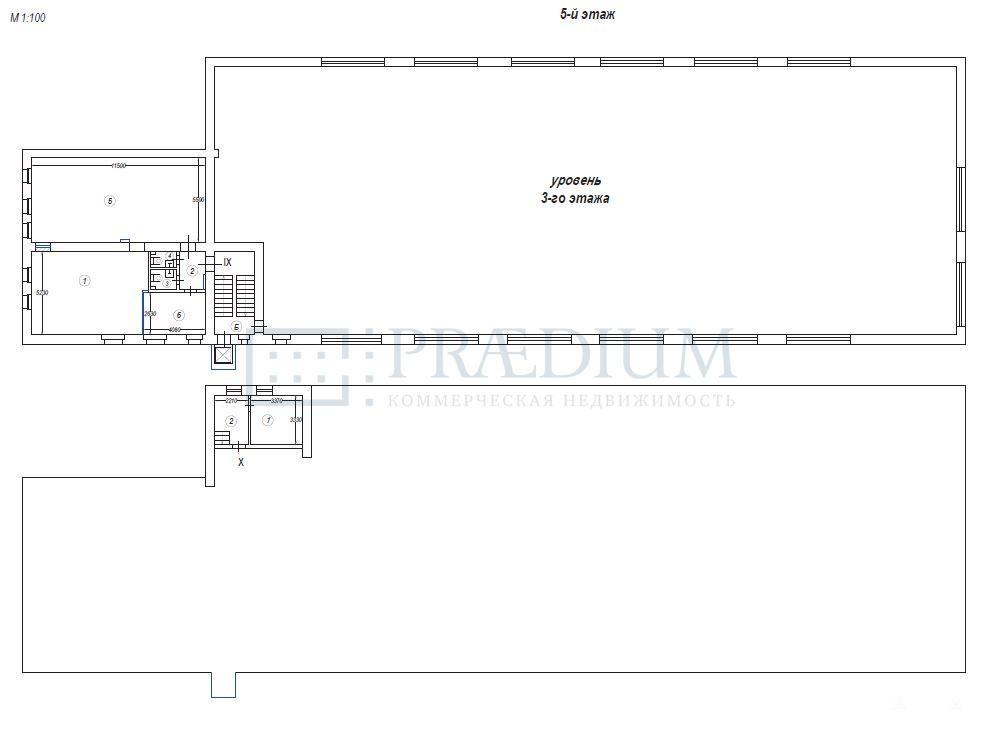
- 133 м²
- Площадь
- 5/5
- Этаж
ID: L13056
Готовый офис для вашего бизнеса на территории Бизнес парка.
Административное здание, три этажа с лифтом.
3 этаж, отдельный блок 133, 3 м2
Планировка: Три кабинета, санузел.
Состояние: офисная отделка.
Кондиционирование.
Пожарная сигнализация, СКУД,
Круглосуточная охрана. Работа 24/7 для сотрудников офиса.
Парковка на закрытой территории.
Инфраструктура: Столовая, кофе-поинт, МИЛТИ.
Дата обновления: 14 января 2026