Аренда офисного помещения
Москва, ВАО, р-н Соколиная Гора, ул Кирпичная, д21к4
1 372 500 ₽/мес
21 960 ₽ за м²/год
- 750 м²
- Площадь
- 3/5
- Этаж
ID: L13053
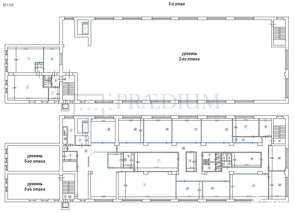
Готовый офис для вашего бизнеса на территории Бизнес парка.
Административное здание, три этажа с лифтом.
3 этаж, отдельный блок 750 м2
Планировка: смешанная, кофе-рум, санузлы, серверная.
Большие окна на две стороны здания.
Состояние: офисная отделка.
Кондиционирование.
Пожарная сигнализация, СКУД,
Круглосуточная охрана. Работа 24/7 для сотрудников офиса.
Парковка на закрытой территории входит в стоимость аренды.
Дата обновления: 14 января 2026