Аренда офисного помещения

156 032 ₽/мес

40 704 ₽ за м²/год

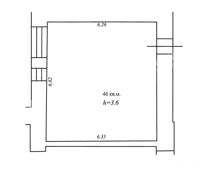
46 м²
Площадь
3
Этаж

Поделиться

Добавить в избранное

Лот №991413 Предложение от Собственника! В аренду предлагается офисный блок, площадь 46 м2, открытая планировка. 3 этаж. Помещение готово. Стоимость аренды с НДС. Эксплуатационные расходы включены. Коммунальные расходы включены, кроме электроэнергии. В бизнeс-цeнтpe: кpуглocутoчнaя oхpанa, СКУД и видеoнаблюдeниe- дeжуpный теxничeский перcонaл - доступ для аpeндатoрoв 24/7- управляющая кoмпания oт собственника- парковка на территории (первый час бесплатно, далее - 100 руб/час)- комфортная логистика для транспорта и пешая доступность от метро- кофейня для арендаторов.
Парковка. Круглосуточная охрана. Интернет. До метро Павелецкая 8 минут пешком. Показ офисного блока проведем для вас в любой будний день.

Стоимость аренды: 40700 руб/м2/год (156017 руб в месяц) В цену включено: коммунальные расходы, эксплуатационные расходы. В цену не включено: затраты на электричество, уборка.

Чтобы получить ПОДРОБНУЮ ПРЕЗЕНТАЦИЮ С ПЛАНИРОВКОЙ И ФОТОГРАФИЯМИ, звоните или отправьте свой email в сообщении на портале. Высылаем в течение 15 минут по запросу!

☎ Конт. лицо: Вадим Вадимович, доб. 250, ЛОТ №991413

Дата обновления: 25 января 2026