103 508 ₽/мес

16 562 ₽ за м²/год

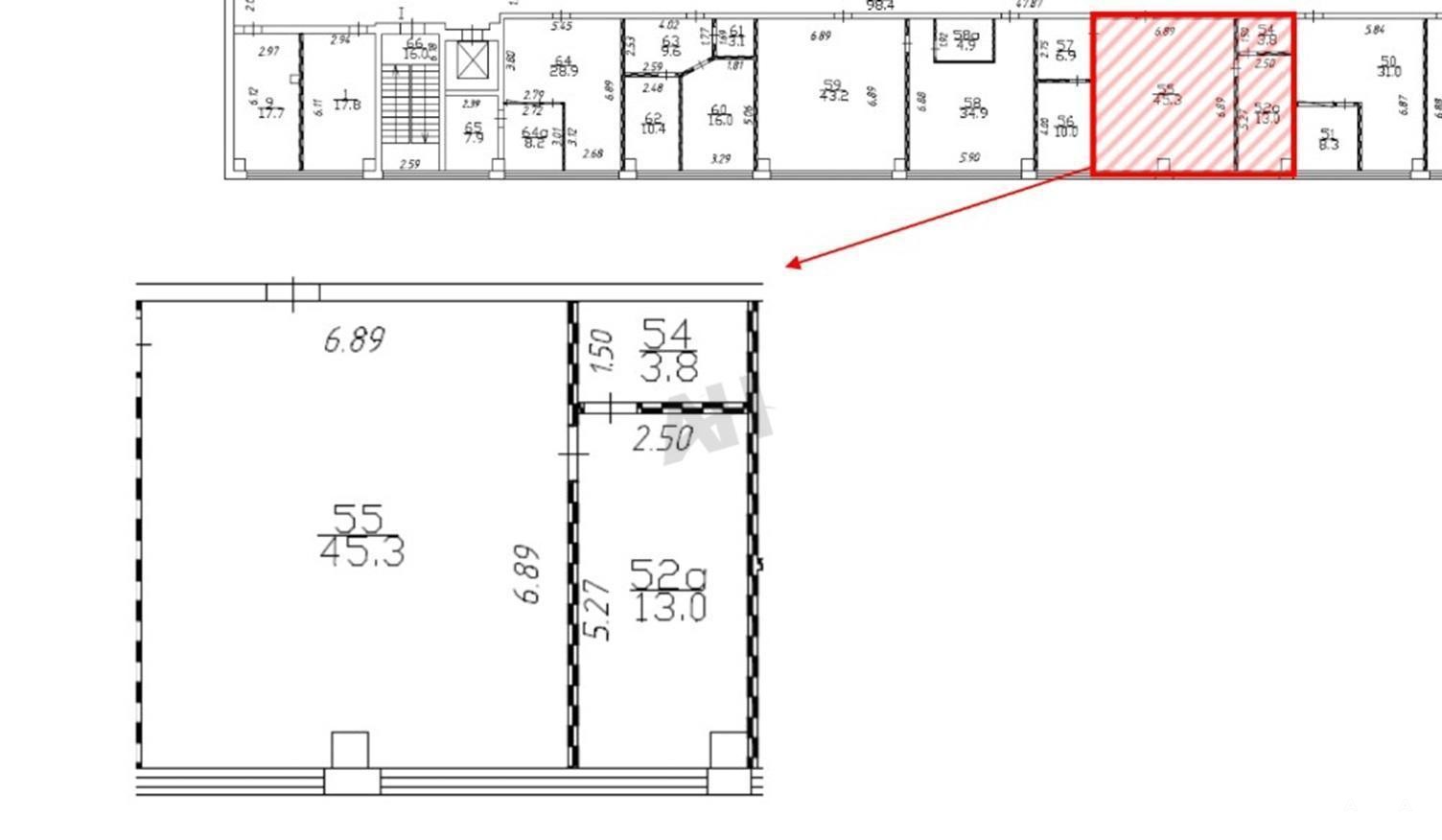
75 м²
Площадь
3
Этаж

Поделиться

Добавить в избранное

Лот №971663 Предложение от Собственника! Предлагается в аренду офисное помещение на 3-ем этаже 74.52 м2 в бц класса В в шаговой доступности от метро. Хороший ремонт : Полы: ламинат, плитка. Стены: ГКЛ, стеклообои с в/э окраской. Потолок: подвесной типа «Армстронг», высота 2, 7м -3, 0 м. Инженерные системы: п/в вентиляция, центральное кондиционирование. Сан.узлы на этаже. Лифты: 2 панорамных и 3 пассажирских лифта
Инженерные системы: приточно-вытяжная вентиляция, центральное кондиционирование
Безопасность: круглосуточная охрана, видеонаблюдение, СКУД, система автоматической пожарной сигнализации, система голосового оповещения, система водяного пожаротушения. Корр.коэф 20%.
Операторы связи: РелсофтКом, ВымпелКом, ВестКолл
Парковка городская или в тц Ашан.
Инфраструктура: фитнес-клуб с бассейном, салон красоты, столовая, кофейня.

Стоимость аренды: 16667 руб/м2/год (103503 руб в месяц) НДС 20% оплачивается дополнительно. В цену включено: коммунальные расходы, эксплуатационные расходы. В цену не включено: затраты на электричество, уборка.

Чтобы получить ПОДРОБНУЮ ПРЕЗЕНТАЦИЮ С ПЛАНИРОВКОЙ И ФОТОГРАФИЯМИ, звоните или отправьте свой email в сообщении на портале. Высылаем в течение 15 минут по запросу!

☎ Конт. лицо: Михаил Вячеславович, доб. 216, ЛОТ №971663

Дата обновления: 9 ноября 2025