Аренда офисного помещения
Москва, ЦАО, р-н Арбат, пер Романов, 4с2
2 081 792 ₽/мес
85 001 ₽ за м²/год
- 294 м²
- Площадь
- 1/10
- Этаж
Это объявление снято с публикации.
Если это ваше объявление, восстановите его в личном кабинете или подайте новое.
В ином случае, вы можете перейти на главную или поискать другие предложения.
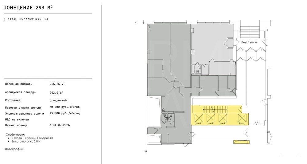
Аренда офиса 293, 9 м² у м. Библиотека им. Ленина (ЦАО) Расположение:
Москва, ЦАО, р-н Арбат, пер. Романов, 4с2
Бизнес-центр Романов Двор 2 , 1-й этаж Транспорт:
Библиотека им. Ленина 5 мин. пешком
Охотный ряд 6 мин. пешком
Александровский сад 6 мин. пешком
Боровицкая 8 мин. пешком Описание помещения:
Площадь: 1 этаж - 293, 9 м²
Состояние: Офисная отделка
Коммуникации:
Высота потолков: 2, 8 м
Мощность: 80 Вт/м² (два независимых ввода)
Двухтрубная система вентиляции и кондиционирования с шумоподавлением
7 независимых провайдеров
Система адресной пожарной сигнализации и спринклерное пожаротушение Инфраструктура:
Парковка на 300 мест с зарядками для электромобилей
Круглосуточная безопасность (видеонаблюдение с Face Tracking)
5 лифтовых групп Tyssen для офисов, 2 VIP-лифта
Дизель-генератор для серверных арендаторов
Вело-мото-парковки Ключевые преимущества:
Исключительное расположение в историческом центре Москвы
Высокотехнологичная инфраструктура премиум-класса
2 входа (1 с улицы, 1 внутри БЦ) Условия аренды:
• Налогообложение: НДС не включен
• Тип сделки: Прямая аренда
• Готовность к въезду: с 01.02.2026 Помещения премиум-класса в одном из самых статусных бизнес-центров Москвы с готовой инфраструктурой для ведения бизнеса высшего уровня. Идеально для головного офиса респектабельной компании, требующей представительности, технологичности и максимальной транспортной доступности. Звоните для организации просмотра и уточнения деталей! Объект №3100-981659.
Дата обновления: 13 ноября 2025