Аренда офисного помещения
Москва, ЦАО, р-н Замоскворечье, наб Шлюзовая, 8с1с1
1 795 000 ₽/мес
40 038 ₽ за м²/год
- 538 м²
- Площадь
- 2
- Этаж
- b
- Класс
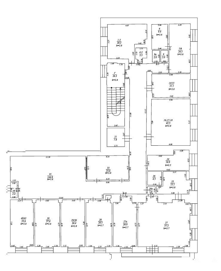
Предлагаем в аренду офис в Бизнес Центре
Общая площадь 538 м2.
Офисный блок смешанной планировки.
Помещение с мокрой точкой под кухню.
Кабинет руководителя с отдельным с/у.
Помещение под серверную.
7 минут от станции Павелецкая
Парковка: более 50 м/м
В здании 3 пассажирских лифта
Ежемесячный арендный платеж 1 795 000 руб. с НДС
Электроэнергия, водоснабжение оплачивается отдельно.
Эксплуатационные расходы включены в стоимость.
Готовность 31.03.2026г
Дата обновления: 12 февраля 2026