3 217 445 ₽/мес

93 940 ₽ за м²/год

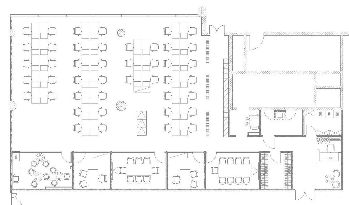
411 м²
Площадь
2
Этаж
a
Класс

Поделиться

Добавить в избранное

Предлагаем в аренду офис в БЦ класса "А" .

Общая площадь 411 кв.м.
Открытая смешанная: два кабинета, две переговорные, open-space, мини кухня, ресепшн, серверная, архив.
Выполнена отделка премиум-класса.

Рассадка до 50 сотрудников.

Помещение готово к въезду с 1 мая 2026 года

Бизнес Центр класса "А" "Четыре Ветра", расположен у станции метро "Белорусская" - пять минут пешком.
В холле расположен атриум с прозрачным куполом. Вечером работает неоновая подсветка.

Подземная парковка • 3 машиноместа.

Арендная ставка: 93 940 руб./м2 в в год.
НДС, OPEX включены в арендную ставку.

Дата обновления: 24 января 2026