Аренда офисного помещения
Москва, ЦАО, р-н Красносельский, ул Красносельская Верхн., 11Ас6с6
750 000 ₽/мес
31 359 ₽ за м²/год
- 287 м²
- Площадь
- 2
- Этаж
- b
- Класс
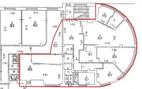
Предлагаем в аренду офисное помещение в Бизнес-Центре "Красносельский"
Общая площадь 287 кв.м.,
Планировка смешанная: зона ресепшен, кабинеты, кухня и сан узлы.
Состояние помещения: за выездом арендатора.
Кондиционирование.
Доступ в офис 24/7, круглосуточная охрана, пропускная система, парковка.
В цену аренды ВСЕ ВКЛЮЧЕНО: НДС, эксплуатационные расходы и коммунальные платежи.
Отдельно оплачивается телефония, интернет, уборка и парковочные места.
Провайдер: Вест Колл ЛДТ.
В 6 мин. пешком от м. "Красносельская" и 11 мин. пешком от м. "Комсомольская".
Свободно: декабрь 2025г.
Дата обновления: 22 октября 2025