6 997 334 ₽/мес

64 015 ₽ за м²/год

1 312 м²
Площадь
15
Этаж
a
Класс

Поделиться

Добавить в избранное

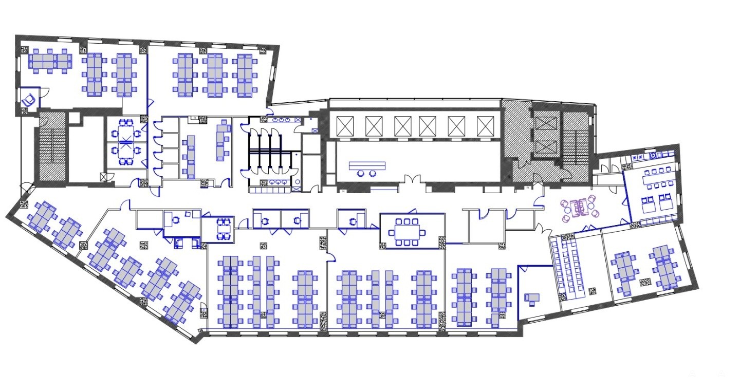
Предлагаем в аренду офис в Бизнес Центре класса "А".

Этаж полностью с современной отделкой и мебелью.

Общая площадь 1311.7 кв.м.
Планировка смешанная.
15-й этаж.

Бизнес-центр «Новосущевский» - офисный центр с полной внутренней и внешней инфраструктурой

Качественное и стильное 22-этажное здание с благоустроенной территорией, зонами отдыха и огромным атриумом внутри.

Центральная система вентиляции IMT Klimat, а также центрального кондиционирования Carier и микроклимата в помещениях.
Система контроля доступа в помещения, круглосуточная охрана и видеонаблюдение.
Система сплинкерного пожаротушения.

Провайдеры: «Вест Колл», «Вымпелком», «МТС», «Гарстелеком», «Мастертелл», «Мегафон».

К услугам арендаторов и их гостей: многофункциональный конференц-зал, корпоративный ресторан, кофейня, салон красоты, банкоматы и многоуровневая парковка, одна из самых больших и удобных в Москве.

Ставка 64 000р за м2 в год в т ч НДС и ЭР
Коммунальные расходы: оплачиваются по факту.
Стоимость парковки: 18 000 руб. включая НДС

готов к въезду

Дата обновления: 29 января 2026