Аренда офисного помещения
Москва, СЗАО, р-н Щукино, проезд 1-й Волоколамский, 10с3с3
266 700 ₽/мес
25 200 ₽ за м²/год
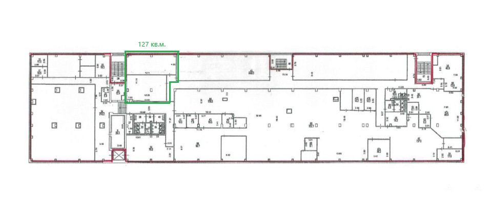
- 127 м²
- Площадь
- 2
- Этаж
- b
- Класс
В аренду предлагаем помещение в Бизнес Центре класса В+ "Диапазон"
Общая площадь 127 кв.м.
12 минут пешком от ст. мцк Панфиловская.
К услугам арендаторов - центральное кондиционирование, система контроля доступа, охрана, видеонаблюдение, интернет, телефония.
11 лифтов Sigma, в том числе: 9 пассажирских лифтов и 2 грузовых
лифта
2-я категория безопасности электроснабжения 8 трансформаторов по 1600
кВА обеспечивает бесперебойное электроснабжение всех потребителей
9 независимых провайдеров (Глобус Телеком , МегаФон, Плюс-
Телеком, Вымпелком, МТС, Эквант, Макомнет, Оранж, Тайм Лайн )
Инфраструктура: конференц-комнаты, кафе, рестораны. столовая, салон красоты, фитнес-клуб, отделение банка, турагентство, банкоматы, химчистка, парковка, зона отдыха.
Парковочные места на наземной охраняемой парковке по цене 12 000 р. за 1 м/м в месяц. Парковочный коэффициент - 1:150.
Переменная арендная плата оплачивается дополнительно по расчетам фактического потребления и пропорционально занимаемой площади.
Операционные расходы включены в арендную ставку.
Гарантийный взнос: устанавливается в размере, равном 2-м месяцам Базовой арендной платы .
Дата обновления: 22 ноября 2025