Аренда офисного помещения
Москва, СВАО, р-н Свиблово, ул Снежная, 26
1 689 000 ₽/мес
36 000 ₽ за м²/год
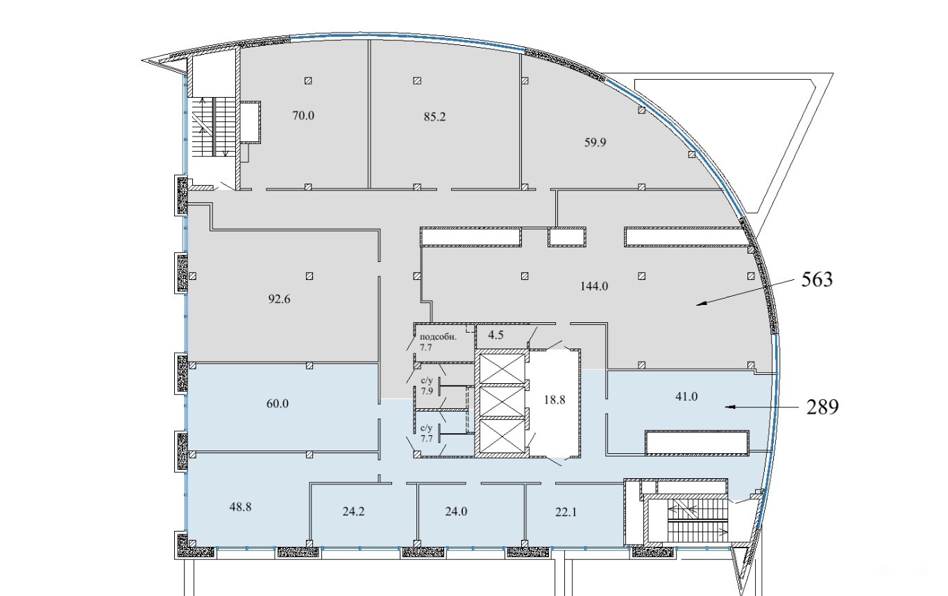
- 563 м²
- Площадь
- 14
- Этаж
- a
- Класс
            Прямая аренда офиса, 
Общая площадь 563 кв.м.
Смешанная планировка:  рецепшен, кабинеты руководителей, переговорные, опен спейс, сан. узлы, кухня и серверная.
Состояние - с отделкой за выездом арендатора.
14 этаж.
Обеспечительный депозит-месячная арендная плата.
Ставка аренды - 36 000 руб./кв.м/год 
Стоимость включает НДС и эксплуатационные платежи
Дополнительные платежи - электричество, водоснабжение и теплоснабжение, согласно показания приборов учета и тарифам города.
Парковочные места 15 000 рублей
Свободно с 20.11.2025г.            
Дата обновления: 9 октября 2025