Аренда офисного помещения
Москва, САО, р-н Войковский, ш Головинское, 5к1к1
317 934 ₽/мес
38 001 ₽ за м²/год
- 100 м²
- Площадь
- 14
- Этаж
- a
- Класс
            Предлагаем в аренду офис в Бизнес Центре "Водный" класса А  
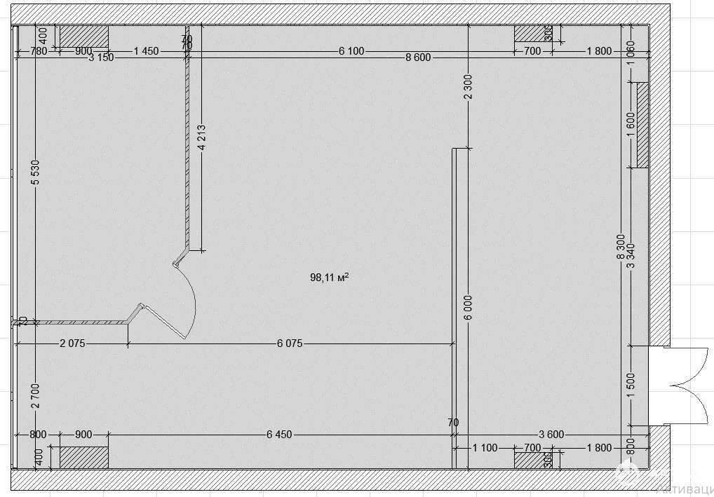
Общая арендуемая площадь 100, 4 кв.м. 
Планировка:  кабинет и опен спейс. 
Отдельный сан узел на этаже.
14-й этаж.
Вентиляция: приточно-вытяжная система вентиляции.
Кондиционирование: центральная система кондиционирования.
2 минуты от станции метро Водный Стадион
Ставка аренды- 38 000 руб./м2/год УСН 
Коммунальные платежи по счётчикам.
            
Дата обновления: 15 октября 2025