Аренда офисного помещения
Москва, ЦАО, р-н Басманный, б-р Покровский, 8
159 986 ₽/мес
39 997 ₽ за м²/год
- 48 м²
- Площадь
- 2
- Этаж
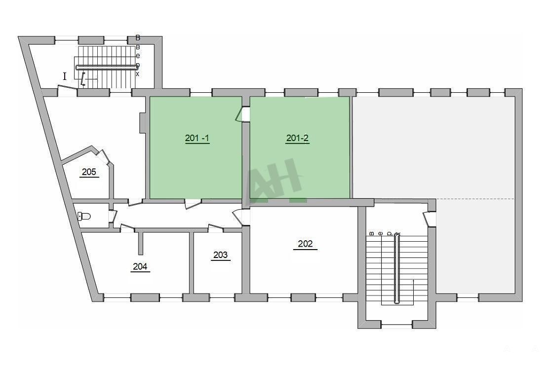
Лот №980556 Предложение от Собственника! В аренду предлагается офисное помещение общей площадью 47.9 кв.м., расположенное на втором этаже административного здания. Помещение состоит из двух кабинетов площадью 21.29 кв.м. и 25.96 кв.м. Отличное состояние, Готово к въезду.
Офис расположен в историческом центре Москвы, на Бульварном кольце. Окна выходят на тихий двор, что обеспечивает спокойную рабочую атмосферу. Каждый кабинет оснащен кондиционером, высота потолков составляет три метра. Охрана, видео наблюдение. Лифт отсутствует.
В шаговой доступности находятся станции метро «Китай-город», «Чистые пруды»/«Тургеневская», «Курская»/«Чкаловская». Вокруг здания представлено множество кафе и ресторанов на любой вкус и бюджет.
На первом этаже расположены популярный ресторан еврейской кухни DIZENGOF/99 и респектабельный Hedonist, отмеченный красным гидом Michelin 2022. В пешей доступности находятся парк «Зарядье» и Красная площадь.
Стоимость аренды: 40084 руб/м2/год (160002 руб в месяц) В цену включено: затраты на электричество, коммунальные расходы, эксплуатационные расходы. В цену не включено: уборка.
Чтобы получить ПОДРОБНУЮ ПРЕЗЕНТАЦИЮ С ПЛАНИРОВКОЙ И ФОТОГРАФИЯМИ, звоните или отправьте свой email в сообщении на портале. Высылаем в течение 15 минут по запросу!
☎ Конт. лицо: Дмитрий Викторович, доб. 220, ЛОТ №980556
Дата обновления: 19 ноября 2025