Аренда офисного помещения
2 334 793 ₽/мес
52 665 ₽ за м²/год
- 532 м²
- Площадь
- 1
- Этаж
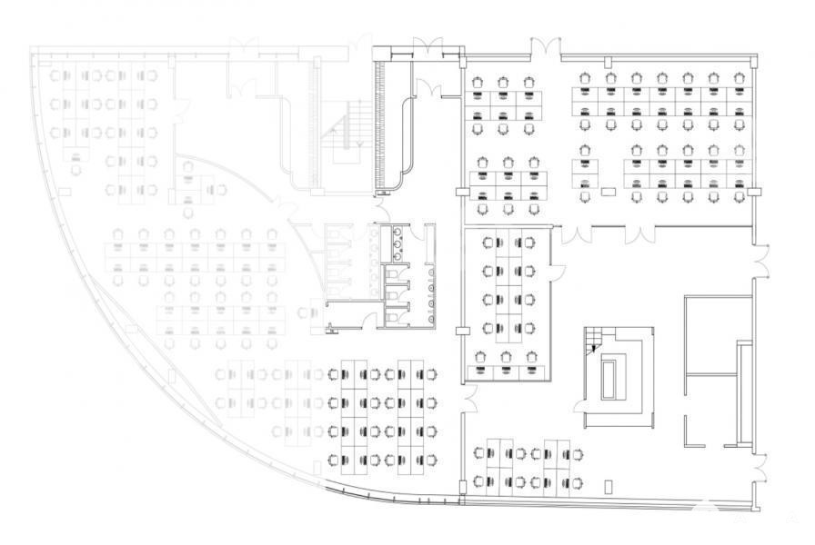
            Лот №938858 Предложение от Собственника! Предлагается в аренду сервисный офис 532.45 кв.м. на 1 этаже в бизнес центре класса А, Поклонка Плейс. Дизайнерский ремонт, сдается с мебелью и техникой. Большие  светлые удобные пространства. Смешанная планировка: зона ресепшен, 1 переговорная, 7 зон open space, кухонька, сан узлы. На подземном паркинге можно арендовать машиноместа.
 Стоимость аренды: 52625 руб/м2/год (2335016 руб в месяц) НДС 20% оплачивается дополнительно. В цену включено: эксплуатационные расходы. В цену не включено: затраты на электричество, коммунальные расходы, уборка.
Чтобы получить ПОДРОБНУЮ ПРЕЗЕНТАЦИЮ С ПЛАНИРОВКОЙ И ФОТОГРАФИЯМИ, звоните или отправьте свой email в сообщении на портале. Высылаем в течение 15 минут по запросу!
☎ Конт. лицо: Ирина Владимировна, доб. 204, ЛОТ №938858            
Дата обновления: 24 сентября 2025