10 186 337 ₽/мес

30 324 ₽ за м²/год

4 031 м²
Площадь
1
Этаж

Поделиться

Добавить в избранное

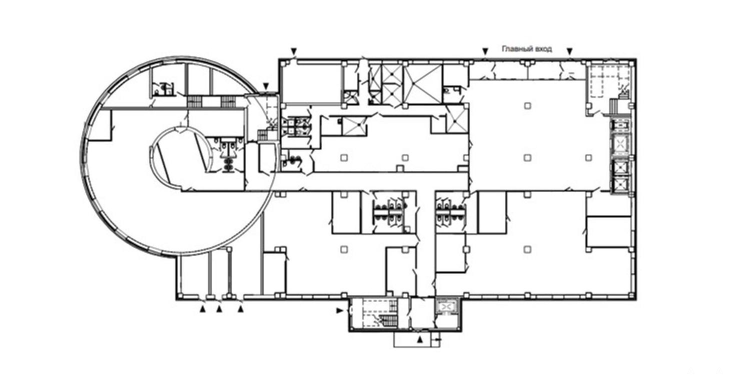
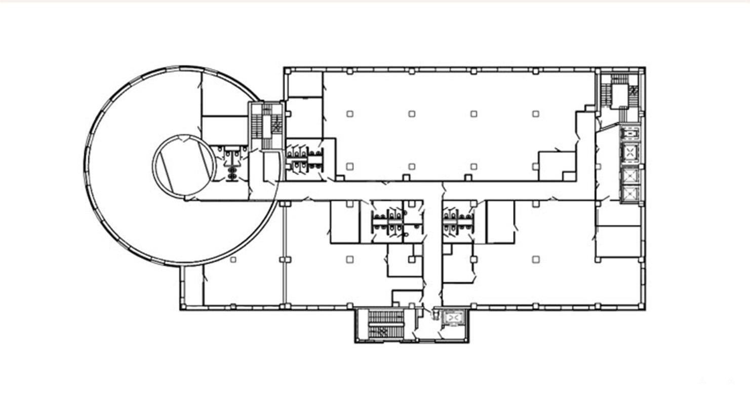
Лот №1052882 Предложение от Собственника! Предлагается в аренду целиком первый и второй этажи в новом здании на территории бизнес-центра "Ринг Парк". 3 минуты пешком от МЦК, Помещения имеют смешанную планировку и выполнены с новым дизайнерским ремонтом в современном стиле с элементами лофт. Высота потолков от перекрытия до перекрытия составляет 4, 5 метра.

Общая площадь первого этажа, предлагаемая в аренду, составляет 2035 кв. м, площадь второго этажа — 1996 кв. м. Планировка может быть открытой или смешанной. На объекте присутствует выделенная электроэнергия мощностью до 80 Вт/кв. м.

Инфраструктура здания включает современное лифтовое оборудование, систему автономного и центрального отопления, а также центральную систему приточно-вытяжной вентиляции с подогревом в зимний период. Установлена центральная система кондиционирования воздуха, работоспособная при температуре окружающего воздуха до минус 15 градусов.

Обеспечена комплексная безопасность: система пожарной сигнализации с возможностью подключения охранной сигнализации и контроль доступа. Для арендаторов доступны охраняемые наземная и крытая многоуровневая парковки. Здание оснащено оптико-волоконными линиями связи. Управление осуществляется профессиональной управляющей компанией. Ввод в эксплуатацию III квартал 2026 года.

Стоимость аренды: 30328 руб/м2/год (10187681 руб в месяц) НДС 22% оплачивается дополнительно. В цену включено: эксплуатационные расходы. В цену не включено: затраты на электричество, коммунальные расходы, уборка.

Чтобы получить ПОДРОБНУЮ ПРЕЗЕНТАЦИЮ С ПЛАНИРОВКОЙ И ФОТОГРАФИЯМИ, звоните или отправьте свой email в сообщении на портале. Высылаем в течение 15 минут по запросу!

☎ Конт. лицо: Михаил Вячеславович, доб. 216, ЛОТ №1052882

Дата обновления: 13 марта 2026