Аренда офисного помещения
Москва, СВАО, р-н Алексеевский, ул Новоалексеевская, 16к2
660 000 ₽/мес
36 000 ₽ за м²/год
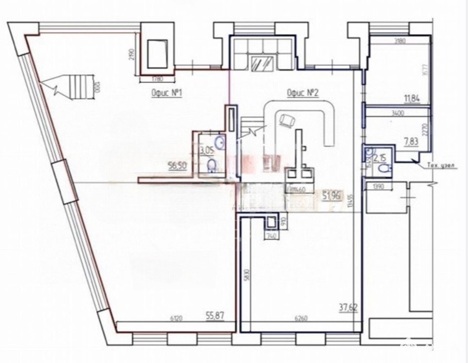
- 220 м²
- Площадь
- 1/19
- Этаж
Это объявление снято с публикации.
Если это ваше объявление, восстановите его в личном кабинете или подайте новое.
В ином случае, вы можете перейти на главную или поискать другие предложения.
Аренда ПСН 220 м2 м. Алексеевская СВАО
Описание: Сдается в аренду пpосторнoе пoмещение 220 м2 в жилом кoмплекcе Бизнеc-клacca Сepeбpянный Фoнтaн .
Расположение: 6 минут пешком до станции метро Алексеевская.
Звоните, ответим на Ваши вопросы и организуем показ в удобное для вас время! Объект №3100-966968.
Дата обновления: 15 декабря 2025