Аренда офисного помещения

346 752 ₽/мес

21 672 ₽ за м²/год

192 м²
Площадь
8
Этаж

Поделиться

Добавить в избранное

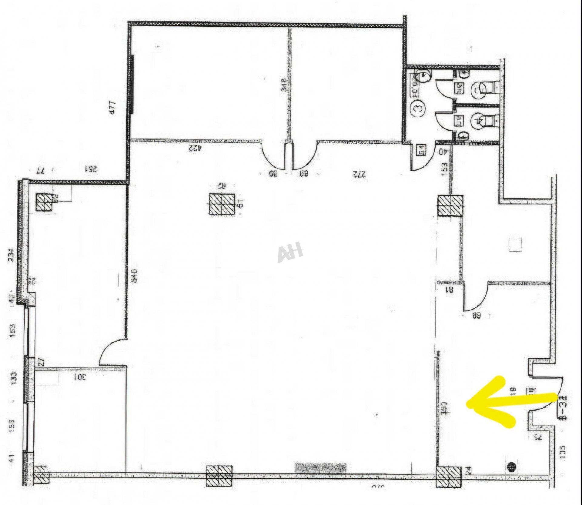
Лот №998992 Предложение от Собственника! Сдается офис площадью 192 кв.м. в БЦ класса Б+, поделен на 2 кабинета, зал, переговорную, серверную и кухню, выполнен свежий евроремонт, установлены кондиционеры, прямая аренда, юридический адрес по 28 налоговой, подземная парковка, доступ 24/7, свободен и готов к въезду.

Стоимость аренды: 21667 руб/м2/год (346672 руб в месяц) НДС 20% оплачивается дополнительно. В цену включено: затраты на электричество, коммунальные расходы, эксплуатационные расходы.

Чтобы получить ПОДРОБНУЮ ПРЕЗЕНТАЦИЮ С ПЛАНИРОВКОЙ И ФОТОГРАФИЯМИ, звоните или отправьте свой email в сообщении на портале. Высылаем в течение 15 минут по запросу!

☎ Конт. лицо: Семен Вячеславович, доб. 238, ЛОТ №998992

Дата обновления: 17 декабря 2025