Аренда офисного помещения

Москва г, Малый Каретный пер, 7

1 045 100 ₽/мес

41 944 ₽ за м²/год

299 м²
Площадь
2
Этаж

Поделиться

Добавить в избранное

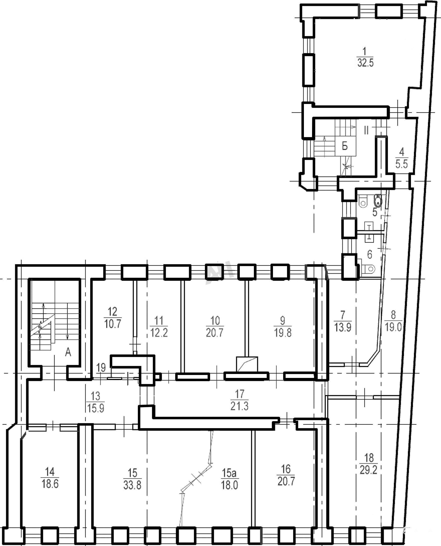
Лот №958911 Предложение от Собственника! Предлагаем в аренду офисный блок (после ремонта и с установленной системой кондиционирования), общей площадью 298.6 кв.м расположенный в тихом историческом центре Москвы на 2 этаже без лифта.Высота потолка 3.68м. Кабинетная планировка. Круглосуточный доступ. Круглосуточная охрана и видеонаблюдение. Пропускная система. Собственная охраняемая парковка на закрытой территории. Удобная транспортная доступность.
Доступность помещения пешком:
м. Цветной Бульвар 5 мин.;
м. Трубная 10 мин.;
м. Тверская, Чеховская, Пушкинская 10 мин.

Стоимость аренды: 42000 руб/м2/год (1045101 руб в месяц) УСН. В цену включено: коммунальные расходы, эксплуатационные расходы. В цену не включено: затраты на электричество, уборка.

Чтобы получить ПОДРОБНУЮ ПРЕЗЕНТАЦИЮ С ПЛАНИРОВКОЙ И ФОТОГРАФИЯМИ, звоните или отправьте свой email в сообщении на портале. Высылаем в течение 15 минут по запросу!

☎ Конт. лицо: Михаил Вячеславович, доб. 216, ЛОТ №958911

Дата обновления: 17 октября 2025