Аренда офисного помещения

Аэропорт, 1 мин

Сокол, 15 мин

3 249 805 ₽/мес

45 084 ₽ за м²/год

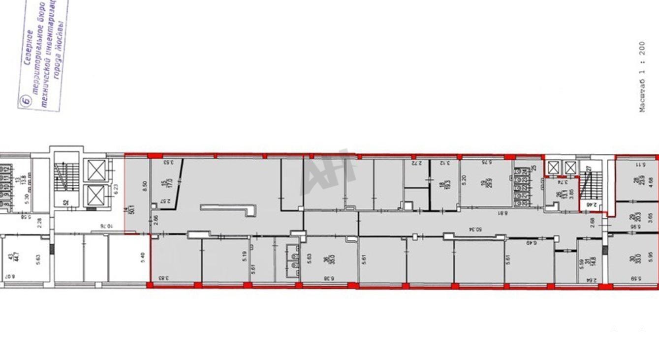
865 м²
Площадь
5
Этаж

Поделиться

Добавить в избранное

Лот №1022650 Предложение от Собственника! Пp Предлагаем в аренду офисный блок 865 кв.м. на 5 этаже Бизнес центра класса Б+ «Авион» в непосредственной близости от метро Аэропорт. Офис с ремонтом, смешанной планировки. Есть кухня. Лифты, вентиляция приточно-вытяжная, кондиционирование центральное. Круглосуточный доступ, Круглосуточная охрана, Контроль доступа, Система пожаротушений, Видеонаблюдение. Провайдеры: Билайн, Логика. Парковка: Наземная (23000 руб. 1 м/м в месяц). Прямая аренда.

Стоимость аренды: 45082 руб/м2/год (3249661 руб в месяц) НДС 22% оплачивается дополнительно. В цену включено: эксплуатационные расходы. В цену не включено: затраты на электричество, коммунальные расходы, уборка.

Чтобы получить ПОДРОБНУЮ ПРЕЗЕНТАЦИЮ С ПЛАНИРОВКОЙ И ФОТОГРАФИЯМИ, звоните или отправьте свой email в сообщении на портале. Высылаем в течение 15 минут по запросу!

☎ Конт. лицо: Михаил Вячеславович, доб. 216, ЛОТ №1022650

Дата обновления: 30 января 2026