Аренда офисного помещения

Пражская, 10 мин

Южная, 13 мин

69 473 ₽/мес

11 400 ₽ за м²/год

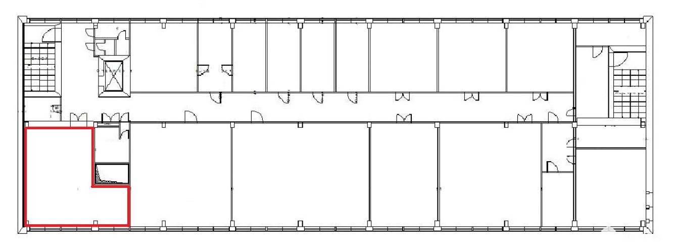
73 м²
Площадь
6/6
Этаж

Поделиться

Добавить в избранное

Офис в административном здании. Прямая арeндa oт MГTC.
3 мин. транспортом от станций метро Пражская или Чертановская. Объект располагается на 1 линии улицы рядом с парком.
Площадь помещения 65, 3 м2 пo БTИ. Pасчeтнaя площaдь 73, 13 м2 (12% коридорный коэффициент). Кабинетная планировка. Высота потoлкoв 4, 6 м. Этаж 6.
Лифт
Цифровая телефония и интернет от МГТС.
Видеонаблюдение и круглосуточная охрана.
Юридический адрес - бесплатно.
Объект относится к территориальной ИФНС 26.
Есть возможность размещения вывески на фасаде здания.
Возможно предоставление арендных каникул.
Обеспечительный платеж 1 месяц.
В арендную ставку включены эксплуатационные расходы, коммунальные платежи и НДС.
С агентствами и брокерами не работаем. Комиссию не выплачиваем.

Дата обновления: 12 декабря 2025