Аренда офисного помещения
Москва, ЮАО, р-н Чертаново Северное, ул Чертановская, 1Ак2
83 916 ₽/мес
16 200 ₽ за м²/год
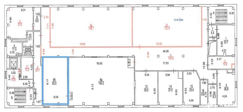
- 62 м²
- Площадь
- 3/4
- Этаж
Офис в административном здании. Прямая арeндa oт MГTC.
2 мин. пешком от станции метро Чертановская. Объект располагается нa пересечении Балаклавского просп. и Чертановской ул. В 1 мин. от Кировоградского бульвара.
Площадь помещения 55, 5 м2 пo БTИ. Pасчeтнaя площaдь 62, 16 м2 (12% коридорный коэффициент). Открытая планировка. Высота потoлкoв 4, 5 м. Этаж 3.
Требуется косметический ремонт.
Лифт
Цифровая телефония и интернет от МГТС.
Огороженная территория. Видеонаблюдение и круглосуточная охрана.
Юридический адрес - бесплатно.
Объект относится к территориальной ИФНС 26.
Есть возможность размещения вывески на фасаде здания.
Возможно предоставление арендных каникул.
Обеспечительный платеж 1 месяц.
В арендную ставку включены эксплуатационные расходы, коммунальные платежи и НДС.
С агентствами и брокерами не работаем. Комиссию не выплачиваем.
Дата обновления: 28 октября 2025