Аренда офисного помещения
Москва, СЗАО, р-н Щукино, ул Берзарина, 32
355 000 ₽/мес
38 310 ₽ за м²/год
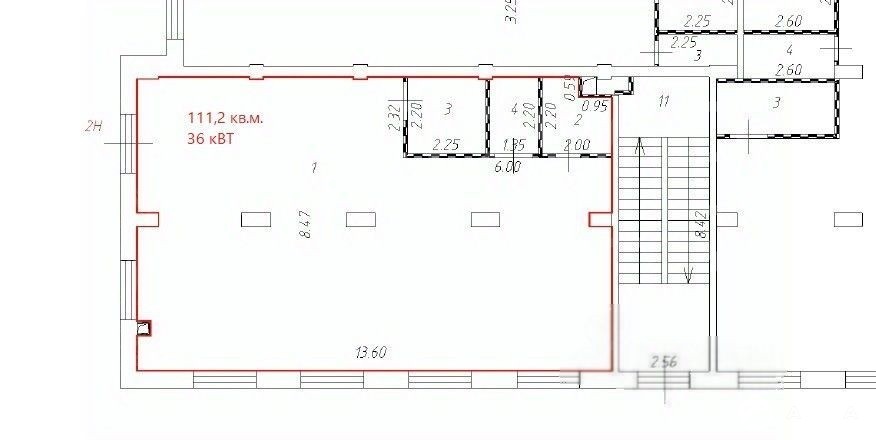
- 111 м²
- Площадь
- 1/25
- Этаж
Просторное ПСН 111 м² в заселенном ЖК на Октябрьском Поле! #арендаофиса #розничныеторговля
Описание:
Сдается угловое коммерческое помещение площадью 111 кв.м с панорамным остеклением и высокими потолками на второй линии домов. Идеальная геометрия помещений для гибкой планировки под ваш бизнес! Развитая инфраструктура в шаговой доступности: фитнес-клубы, кафе, магазины. Соседи популярный Самокат и студия Груминг , что гарантирует высокий трафик!
Расположение:
Коммерческая площадка расположена в СЗАО, район Щукино, всего 5 минут от метро Октябрьское Поле. В окружении заселенного ЖК с инфраструктурой, где уже работают востребованные сервисы! #удобноеРасположение #центрСтолицы
Коммуникации:
Все центральные коммуникации подключены:
- Электромощность 36 кВт
- Мокрая точка
- Отдельный вход с улицы и зона разгрузки во дворе .
Идеально для розницы, общепита, бьюти-проектов и медицинских услуг!
Парковка:
Наземная парковка для клиентов в шаговой доступности , удобный подъезд со стороны Берзарина. #доступность #безпроблем
Дополнительно:
Преимущества:
- Без залогов, обременений и ограничений
- Статус: собственность (долгосрочный договор аренды)
- Возможность круглосуточного доступа 24/7
- Потенциал использования: магазин, кофейня, салон красоты, аптека, коворкинг и многое другое!
Подарите бизнесу простор и фонтан клиентов! Не упустите шанас арендовать помещение с идеальным соотношением цена-проходимость #арендаПСН #Шукино #коммерческаяНедвижимость
Идеи для бизнеса:
Розничные точки, коворкинги
Барбершоп, массажные студии
Аптеки, медицинские центры
Кондитерские, кофейни
Творческие мастерские, фитнес
Регистрируйте запросы, звоните операторам получите аудиторию в одном из самых трендовых районов САО! #коммерческиеПлощади #businessopportunities Объект №3100-981485.
Дата обновления: 12 ноября 2025