Аренда офисного помещения
Москва, ЮВАО, р-н Южнопортовый, ул 2-я Машиностроения, 17с1
311 000 ₽/мес
24 964 ₽ за м²/год
- 150 м²
- Площадь
- 1/3
- Этаж
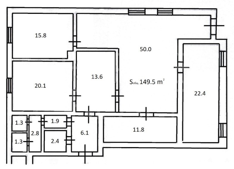
АРЕНДА ОФИСА 149, 5 М² С ДВУМЯ ВХОДАМИ У М. ДУБРОВКА ГИБКОЕ ПРОСТРАНСТВО ДЛЯ РАЗВИТИЯ ВАШЕГО БИЗНЕСА! Функциональное офисное помещение с 6 кабинетами и двумя отдельными входами в развивающемся деловом районе ЮАО. КЛЮЧЕВЫЕ ХАРАКТЕРИСТИКИ Площадь/Планировка:
Офис 149, 5 м² с 6 кабинетами, кладовой и 2 санузлами. Два отдельных входа. Высота потолков 2, 7 м. Свободная планировка для адаптации. Локация: Метро: Дубровка в пешей доступности Район: ЮАО с развитой инфраструктурой и транспортной доступностью Транспорт: Удобные подъездные пути для клиентов и партнеров Инфраструктура:
Коммуникации: Центральные системы водоснабжения, отопления
Электроснабжение: Мощность до 15 кВт
Вентиляция: Системы кондиционирования и вентиляции
Парковка: Свободные места во дворе ПОЧЕМУ ЭТО ВЫГОДНО? Гибкость пространства: Два входа и свободная планировка позволяют создать оптимальную конфигурацию под ваши задачи
Готовая инфраструктура: Все необходимые коммуникации подключены и функционируют
Развивающаяся локация: Перспективный район ЮАО с растущей деловой активностью
Функциональность: 6 кабинетов и вспомогательные помещения под разные отделы компании ВАШ БИЗНЕС В ЭПИЦЕНТРЕ
Для сервисного бизнеса: Организуйте пространство для приема клиентов и внутренней работы команды
Для проектных команд: Создайте среду для разных направлений работы с общей инфраструктурой Получите план помещения и варианты планировки уточните структуру вашей компании!
Напишите для организации просмотра и обсуждения условий аренды. #АрендаОфиса #Дубровка #ЮАО #ОфисноеПространство #БизнесВМоскве #ГибкаяПланировка
Поисковые запросы: аренда офиса в ЮАО у метро Дубровка, офис 150 м2 с двумя входами, помещение под офис с кабинетами Пространство, которое адаптируется под ваши амбиции создайте идеальную рабочую среду для команды с возможностью гибкого зонирования! Объект №3100-981591.
Дата обновления: 12 ноября 2025