Аренда офисного помещения
592 020 ₽/мес
26 400 ₽ за м²/год
- 269 м²
- Площадь
- 1/10
- Этаж
Это объявление снято с публикации.
Если это ваше объявление, восстановите его в личном кабинете или подайте новое.
В ином случае, вы можете перейти на главную или поискать другие предложения.
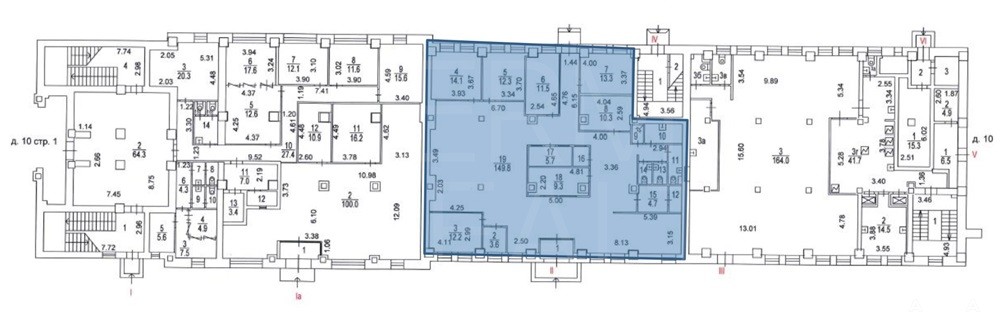
Аренда офиса 269, 1 м2 м. Октябрьское Поле в СЗАО.
Расположение :
Бизнес-центре "Диапазон" площадью 706 м находится по адресу: Москва, 1-и Волоколамскии проезд, д. 10.
Ключевые преимущества : услуги связи предоставляют 7 независимых проваидеров расположено на первой линии 1-ого Волоколамского проезда в районе Щукино СЗАО деловои центр оснащен современными инженерными системами, в том числе центральнои системои кондиционирования и приточно-вытяжнои вентиляции развитая инфраструктура: несколько кафе, просторная столовая, конференц-зал, фитнес- клуб, салон красоты, салон цветов, салон-парикмахерская, банкоматы, минимаркет и магазин Магнит .
Доступность :
В 1 мин пешком остановка общественного транспорта.
В 10 мин пешком станция метро Панфиловская,
В 15 мин пешком станция метро Октябрьское Поле,
В 24 мин пешком железнодорожная станция Стрешнево Основные характеристики :
Общая площадь: 269, 1 кв.м.,
Высота потолков: 4, 4м,
Этаж/этажность: 1/10,
Кабинетная планировка,
Офисная отделка,
БЦ класса В+
Электрическая мощность: 24, 5 кВТ
Платный наземный паркинг на внутренней территории,
Вся территория, включая наземную парковку, охраняется.
Коммерческие условия
Переменная арендная плата оплачивается дополнительно по расчетам фактического потребления и пропорционально занимаемой площади
Гарантийный взнос в размере 2-х(Двух) месячной арендной платы
Ежегодная индексация Базовой арендной платы 8%, начиная со второго года аренды.
Срок аренды от 11 мес
Паркинг: Наземныи 1 м/м 10 000 руб. (кроме того НДС). Объект №3100-982354.
Дата обновления: 27 ноября 2025