Продажа дома

Московская область, деревня Назарьево, Московская область, Одинцовский городской округ, деревня Назарьево

384 м²
Площадь
2
Этажность

110 000 000 ₽

286 459 ₽ за м²

ID объявления 12105466

Поделиться

Добавить в избранное



№178440
Современный клубный поселок бизнес-класса на 6 домовладений всего в 40 минутах от Москвы, независимо от пробок, по живописному Рублево-Успенскому шоссе. Безопасность, стиль и комфорт — это основополагающие факторы, которые учитывались при строительстве.
Площадь домовладений составляет от 347 кв. м. Планировка каждого дома спроектирована с учетом всех нюансов для максимально комфортной жизни. Здесь вы найдете сочетание практичности и эстетики, создающее атмосферу гармонии и уюта.

Пропускная система через КПП. Поселок охраняется круглосуточно, пропускная система обеспечит надежную защиту для вас и вашей семьи.

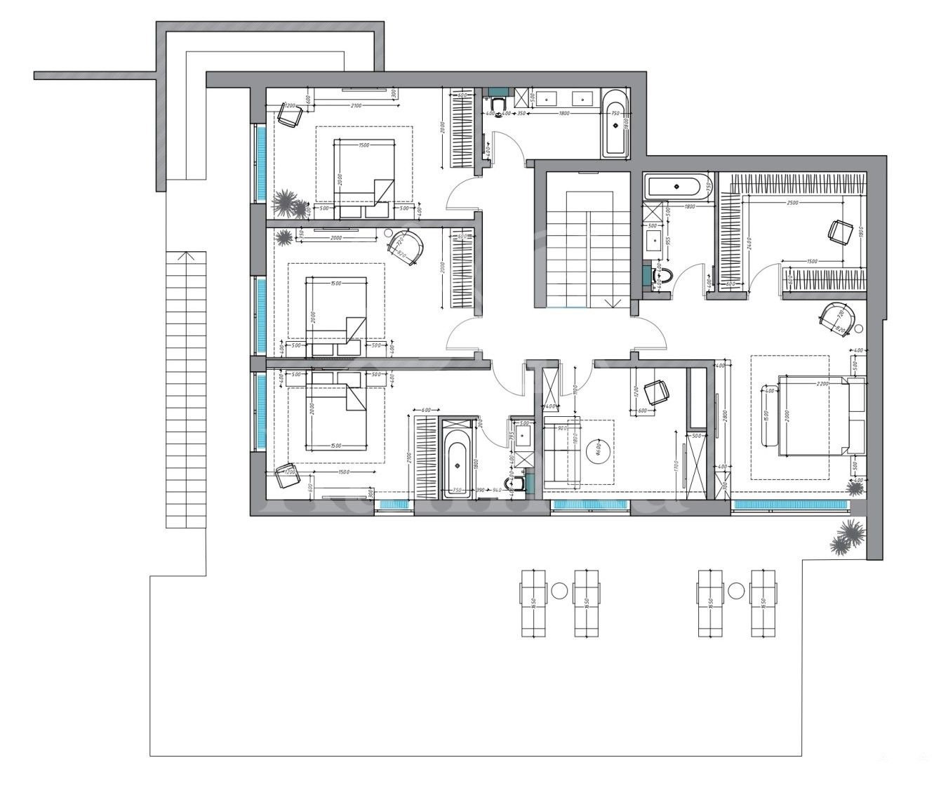
Планировка дома:
1 этаж: прихожая, гардероб, гостиная, терраса, кухня-столовая, спальня, с/у, котельная, гараж на 2 м/м.
2 этаж: холл, мастер-спальня с гардеробной и с/у, постирочная, гардеробная, 2 спальни, с/у, кабинет, терраса.

Предлагаются 3 варианта внутренней отделки домов:

- White Box
Коттедж в состоянии "White Box" представляет собой пустое пространство с завершёнными основными строительными работами. Внутренние стены отштукатурены, установлены окна и двери, проведены коммуникации (электричество, водоснабжение и канализация). Это идеальный вариант для тех, кто хочет самостоятельно выбрать отделку и дизайн интерьера.

- С отделкой
Коттедж с отделкой уже готов к проживанию. Внутренние помещения оформлены с использованием качественных материалов: покраска стен, укладка пола, установка сантехники и освещения. Такой вариант подходит для тех, кто хочет избежать дополнительных затрат на ремонт и сразу переехать в готовый дом.

- С отделкой, мебелью и техникой
Коттедж полностью меблирован и оборудован всей необходимой техникой. Это включает кухонные приборы, бытовую технику и мебель для всех помещений, а также систему "умный дом". Такой вариант идеально подходит для покупателей, которые ценят комфорт и удобство и хотят сразу начать жить без дополнительных хлопот по обустройству.

Состав помещений:
В доме 2 просторных этажа, которые идеально разделяют зоны для отдыха и работы.
На 1 этаже вас встретит шикарная кухня-гостиная — это сердце вашего дома, где можно собираться всей семьей и радушно принимать гостей. Простор и свет, а также современная техника делают времяпрепровождение удобным и pleasant.

На 2 этаже расположены три комнаты, которые можно использовать под спальни, детские или кабинеты. Мастер-спальня с собственным санузлом — это личное пространство для отдыха и релаксации. Отдельные санузлы на каждом этаже обеспечивают максимальный комфорт.

Каждая деталь в коттеджах продумана. Просторные гардеробные помогут организовать пространство, а тренажерный зал на втором этаже станет идеальным местом для поддержания формы без необходимости покидать дом.

Дата обновления: 16 апреля 2026