Продажа 1-комнатной квартиры

Москва, Зеленоград, город Москва, Александровка улица, 6

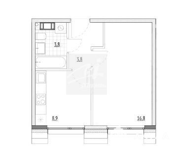
33 м²
Площадь
16.80 м²
Жилая площадь
8.90 м²
Площадь кухни
4/8
Этаж

6 950 000 ₽

209 970 ₽ за м²

ID объявления 12285415

Поделиться

Добавить в избранное

Описание квартирыОднокомнатные апартаменты в ЖК «Wellbe» с готовой отделкой. Идеально под сдачу в аренду.Также можно использовать и для собственного проживания одного человека или пары.Останется только завезти мебель!Постоянная регистрация в апартаментах невозможна !Дом и дворWellbe — современный комплекс апартаментов с отделкой и системой «Умный дом», созданный по индивидуальному проекту, архитектурное событие Зеленограда!В рамках концепции комплекса предусмотрено развитое общественное пространство, где каждый житель может найти и приватные места для общения, и места для активного отдыха со своими близкими.На первом этаже располагаются помещения для бизнеса, где появится вся необходимая для комфортной жизни инфраструктура. Пункты выдачи уже открыты.Благоустроенная территория комплекса с уникальным ландшафтным дизайном и ночным освещением создает идеальное место для жителей Wellbe.Инфраструктура рядом:14-й микрорайон Зеленограда (р-н Крюково) — это семейный, зеленый район с полностью развитой инфраструктурой. В пешей доступности находятся школы, детские сады, поликлиника, магазины (включая «Ашан»), фитнес-центр, салоны красоты, банки. 14-й микрорайон считается тихим и уютным местом для проживания, окруженным зелеными зонами. В непосредственной близости от ЖК располагается перинатальный центр ГКБ им.Кончаловского.Транспортная доступность :До станции МЦД Крюково 15-20 мин пешком. Удобный выезд на Ленинградское и Пятницкое шоссе в обе стороны.Условия продажи:Один собственник. Без обременений.Полная стоимость в договоре!Работать с МИЭЛЬ выгодно и надёжно:Миэль предоставляет покупателю правовой сертификат, гарантирующий юридическую чистоту объекта; .Оказываем помощь в оформлении ипотеки на выгодных условиях.Бонусы по партнёрским программам МИЭЛЬ на товары и услуги известных брендов.БЕЗ комиссии для покупателя.

Дата обновления: 25 апреля 2026

Квартира От собственника